Москва, ул Малая Пироговская, д 16
Пн-пт с 09:00 до 21:00, Сб-вс с 11:00 до 18:00

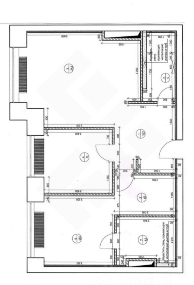
Продажа 3-к.квартира, 80 м², 18/25 эт. ID: J62236

Москва, Северный, Аэропорт, проспект Ленинградский, д.36, к.40

Динамо Замоскворецкая 5 мин.
Комнаты 3
Площадь 80 м²
Жилая 50 м²
Кухня 15 м²
Этаж 18 из 25
Сдача 2019 г.
Мартынова Кристина

Мартынова Кристина
Специалист по недвижимости

+7(901)748-3048

martynova@chaseestate.ru
QR
Ссылка на объект

Описание

К покупке предлагается великолепный апартамент с готовым ремонтом в ЖК бизнес-класса "ВТБ Арена Пак" общей площадью 80 кв.м.

Планировкой предусмотрено:

- Просторная кухня-гостиная$
- 2 изолированные спальни, одна из которых Master.
- 2 совмещённых санузла.

Дизайнерская отделка выполнена в нейтральных светлых тонах, высокие потолки - 3.2 м, 3 панорамных окна: всё это обеспечивает большое количество света и пространства.

Инфраструктура ЖК «ВТБ Арена Парк» включает в себя как собственную, так и внешнюю, с доступом к стадиону, парку, торгово-развлекательному центру «Арена Плаза» и пятизвездочному отелю Hyatt Regency, предлагающему гостиничный сервис. В жилом квартале есть 3-х уровневый подземный паркинг, магазины, кафе, школы, фитнес-центры с бассейнами, СПА и детские досуговые центры, а также консьерж-служба.

Городской ансамбль МФК «ВТБ Арена Парк» размещен в непосредственной близости от исторического центра столицы. Отличная транспортная доступность за счет близости Ленинградского проспекта и ТТК. Расстояние до Кремля на автомобиле можно преодолеть по дороге без пробок всего за 15 минут, а добраться до делового центра столицы Москва-Сити — за 20.

С Третьего Транспортного кольца легко попасть в любой район столицы. Ленинградский проспект связывает комплекс с Белорусским вокзалом и международным аэропортом Шереметьево.

Свободная продажа. Без обременений.
Возможен оперативный просмотр.
Подробнее

Характеристики

  • Тип недвижимости Квартиры
  • Населенный пункт Москва
  • Адм.округ Северный
  • Район Аэропорт
  • Адрес проспект Ленинградский, д.36, к.40
  • Станция метро Динамо ( 5 мин.)
  • Станция метро Петровский парк ( 11 мин.)
  • Количество комнат 3
  • Год постройки дома 2019 г.
  • Общая площадь 80 м²
  • Жилая площадь 50 м²
  • Площадь кухни 15 м²
  • Этаж 18
  • Этажей в доме 25
  • Ремонт дизайнерский
  • Состояние объекта отличное
  • Вид из окон на улицу
  • Высота потолков в метрах 3.2 м.
  • Тип дома Монолитный
  • Количество совмещенных санузлов 2
  • Количество грузовых лифтов 1
  • Количество пассажирских лифтов 2
  • Пентхаус нет
  • Есть терраса нет
  • Апартаменты нет
  • Жилой комплекс ВТБ Арена парк
  • Корпус ЖК к. 12
  • Паркинг Подземная
  • Тип санузла Совмещенный
  • Тип продажи Свободная продажа
  • Счетчики оплачиваются отдельно нет

Застройщик:

ООО «СЗ ВЕРНАДКА, 12»

Задать вопрос


Другие объекты застройщика ООО «СЗ ВЕРНАДКА, 12»:

9
2-к.апартаменты, 51.5 м², 5/12 эт.
Москва, проспект Ленинградский, д.36, к.36
Северный, Аэропорт
Динамо Петровский парк
34 000 000
  • Общая площадь:51.5 м²
  • Жилая площадь:14 м²
  • Площадь кухни:21 м²
  • Этаж:5
19
2-к.апартаменты, 51 м², 2/12 эт.
Москва, проспект Ленинградский, д.36, к.30
Северный, Аэропорт
Динамо
43 000 000
  • Общая площадь:51 м²
  • Жилая площадь:34 м²
  • Площадь кухни:5 м²
  • Этаж:2
22
4-к.апартаменты, 110 м², 3/12 эт.
Москва, проспект Ленинградский, д.36, к.30
Северный, Аэропорт
Динамо
68 000 000
  • Общая площадь:110 м²
  • Жилая площадь:62 м²
  • Площадь кухни:11 м²
  • Этаж:3
19
3-к.апартаменты, 112 м², 11/12 эт.
Москва, проспект Ленинградский, д.36, к.30
Северный, Аэропорт
Динамо Петровский парк
69 000 000
  • Общая площадь:112 м²
  • Жилая площадь:70 м²
  • Площадь кухни:30 м²
  • Этаж:11
26
2-к.апартаменты, 105 м², 8/12 эт.
Москва, проспект Ленинградский, д.36, к.37
Аэропорт, Аэропорт
Динамо
650 000 / месяц
  • Общая площадь:105 м²
  • Жилая площадь:36 м²
  • Площадь кухни:34 м²
  • Этаж:8
11
Эксклюзив!
Москва, проспект Ленинградский, д.36, к.30
Аэропорт, Аэропорт
Динамо Петровский парк
70 000 000
  • Общая площадь:109 м²
  • Жилая площадь:65 м²
  • Площадь кухни:8 м²
  • Этаж:12
9
2-к.апартаменты, 94 м², 4/10 эт.
Москва, проспект Ленинградский, д.36, к.31
Аэропорт, Аэропорт
Динамо
75 000 000
  • Общая площадь:94 м²
  • Жилая площадь:55 м²
  • Площадь кухни:12 м²
  • Этаж:4
10
2-к.апартаменты, 50.3 м², 11/12 эт.
Москва, проспект Ленинградский, д.36, к.30
Северный, Аэропорт
Динамо Петровский парк
35 000 000
  • Общая площадь:50.3 м²
  • Жилая площадь:35 м²
  • Площадь кухни:8 м²
  • Этаж:11
13
4-к.апартаменты, 110 м², 9/12 эт.
Москва, проспект Ленинградский, д.36, к.30
Аэропорт, Аэропорт
Динамо Петровский парк
110 000 000
  • Общая площадь:110 м²
  • Жилая площадь:34 м²
  • Площадь кухни:52 м²
  • Этаж:9
8
3-к.апартаменты, 82 м², 2/12 эт.
Москва, проспект Ленинградский, д.36, к.30
Северный, Аэропорт
Динамо Петровский парк
50 000 000
  • Общая площадь:82 м²
  • Жилая площадь:68 м²
  • Площадь кухни:14 м²
  • Этаж:2
9
1-к.апартаменты, 50.2 м², 6/12 эт.
Москва, проспект Ленинградский, д.36, к.30
Северный, Аэропорт
Динамо Петровский парк
34 000 000
  • Общая площадь:50.2 м²
  • Жилая площадь:14 м²
  • Площадь кухни:21 м²
  • Этаж:6
19
3-к.апартаменты, 142.4 м², 8/12 эт.
Москва, проспект Ленинградский, д.36, к.30
Северный, Аэропорт
Динамо Петровский парк
80 000 000
  • Общая площадь:142.4 м²
  • Жилая площадь:97 м²
  • Площадь кухни:20.4 м²
  • Этаж:8

Вас также может заинтересовать:

2-к.квартира, 52 м², 2/14 эт.
Москва, набережная Фрунзенская, д.40
Центральный, Хамовники
Фрунзенская Спортивная Лужники
61 500 000
  • Общая площадь:52 м²
  • Жилая площадь:33.8 м²
  • Площадь кухни:6 м²
  • Этаж:2
3-к.квартира, 74 м², 2/24 эт.
Москва, шоссе Хорошёвское, д.25А, к.3
Северный, Северный
Хорошевская Беговая
50 000 000
  • Общая площадь:74 м²
  • Жилая площадь:30 м²
  • Площадь кухни:25 м²
  • Этаж:2
3-к.апартаменты, 103 м², 11/13 эт.
Москва, переулок 3-й Люсиновский, д.1, к.1
Центральный
Серпуховская
66 950 000
  • Общая площадь:103 м²
  • Жилая площадь:60 м²
  • Площадь кухни:20 м²
  • Этаж:11

Мы используем файлы cookie, чтобы обеспечить вам наилучший доступ к нашему веб-сайту

Скопировано