Москва, ул Малая Пироговская, д 16
Пн-пт с 09:00 до 21:00, Сб-вс с 11:00 до 18:00

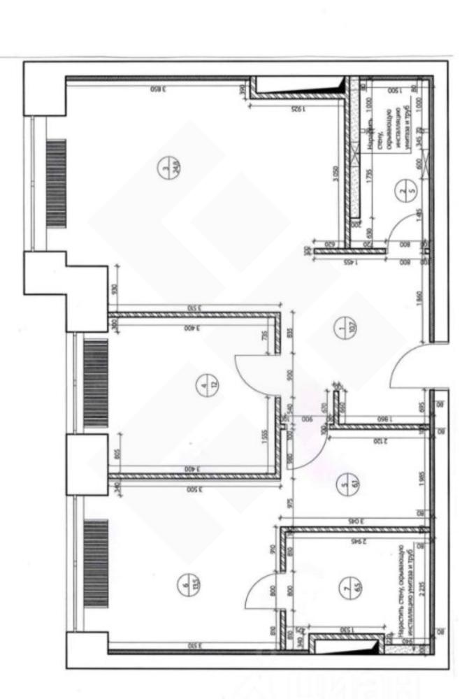
Продажа 2-к.апартаменты, 50.3 м², 11/12 эт. ID: J58963

Москва, Северный, Аэропорт, проспект Ленинградский, д.36, к.30

Динамо Замоскворецкая 8 мин.
Комнаты 2
Площадь 50.3 м²
Жилая 35 м²
Кухня 8 м²
Этаж 11 из 12
Сдача 2019 г.
Мартынова Кристина

Мартынова Кристина
Специалист по недвижимости

+7(901)748-3048

martynova@chaseestate.ru
QR
Ссылка на объект

Описание

J58963 Кристина Мартынова

К покупке предлагается отличный евро 2-комнатный апартамент в ЖК "ВТБ Арена Парк" без ремонта (возведены стены)

Актуальной планировкой предусмотрено:
- Просторная кухня-гостиная;
- спальня;
- совмещённый санузел;
- гардеробная vs комната хозяйственного назначения.

Высокие потолки 3,2 м. Окна выходят на ул. Новая Башиловка: за счёт того, что высокий этаж и качественный стеклопакет немецкого бренда "Schuco" в апартаменте очень тихо.
Возможно реализовать свою приточно-вытяжную систему вентиляции с выводом внешнего блока на 2-х последних этажах корпуса.

МФК ВТБ Арена парк - масштабный проект комплексной застройки от знаменитых архитекторов Сергея Чобана и Сергея Кузнецова в 2 минутах от Петровского парка и метро Динамо, в 10 минутах от Тверской улицы.
Деловой комплекс, высококлассный отель 5*, большой жилой квартал с апартаментами и всей необходимой инфраструктурой и бизнес-центр расположены на Ленинградском проспекте рядом с метро Динамо и Парком физкультуры и спорта. Проектные решения городского квартала продолжают лучшие традиции московской архитектуры: реплики высотных зданий сталинского периода, украшенные барельефами фасады с ажурной резьбой, ставшие визитной карточкой исторического района Динамо, дополняются современными конструктивными решениями, новейшей инженерией и инновационной эргономикой пространства. Территория огорожена. Круглосуточная охрана, система видеонаблюдения, а также контроль и управление доступом.
Подробнее

Характеристики

  • Тип недвижимости Квартиры
  • Населенный пункт Москва
  • Адм.округ Северный
  • Район Аэропорт
  • Адрес проспект Ленинградский, д.36, к.30
  • Станция метро Динамо ( 8 мин.)
  • Станция метро Петровский парк ( 12 мин.)
  • Количество комнат 2
  • Год постройки дома 2019 г.
  • Общая площадь 50.3 м²
  • Жилая площадь 35 м²
  • Площадь кухни 8 м²
  • Этаж 11
  • Этажей в доме 12
  • Ремонт черновая отделка
  • Вид из окон на улицу
  • Высота потолков в метрах 3.2 м.
  • Тип дома Монолитный
  • Количество совмещенных санузлов 1
  • Количество пассажирских лифтов 2
  • Пентхаус нет
  • Есть терраса нет
  • Апартаменты да
  • Жилой комплекс ВТБ Арена парк
  • Корпус ЖК к. 7
  • Паркинг Подземная
  • Тип санузла Совмещенный
  • Тип продажи Свободная продажа
  • Счетчики оплачиваются отдельно нет

Застройщик:

ООО «СЗ ВЕРНАДКА, 12»

Задать вопрос


Другие объекты застройщика ООО «СЗ ВЕРНАДКА, 12»:

9
2-к.апартаменты, 94 м², 4/10 эт.
Москва, проспект Ленинградский, д.36, к.31
Аэропорт, Аэропорт
Динамо
75 000 000
  • Общая площадь:94 м²
  • Жилая площадь:55 м²
  • Площадь кухни:12 м²
  • Этаж:4
13
4-к.апартаменты, 110 м², 9/12 эт.
Москва, проспект Ленинградский, д.36, к.30
Аэропорт, Аэропорт
Динамо Петровский парк
110 000 000
  • Общая площадь:110 м²
  • Жилая площадь:34 м²
  • Площадь кухни:52 м²
  • Этаж:9
19
3-к.апартаменты, 142.4 м², 8/12 эт.
Москва, проспект Ленинградский, д.36, к.30
Северный, Аэропорт
Динамо Петровский парк
80 000 000
  • Общая площадь:142.4 м²
  • Жилая площадь:97 м²
  • Площадь кухни:20.4 м²
  • Этаж:8
6
2-к.апартаменты, 55.8 м², 8/12 эт.
Москва, проспект Ленинградский, д.36, к.30
Северный, Аэропорт
Динамо Петровский парк
33 000 000
  • Общая площадь:55.8 м²
  • Жилая площадь:38 м²
  • Площадь кухни:6 м²
  • Этаж:8
22
4-к.апартаменты, 110 м², 3/12 эт.
Москва, проспект Ленинградский, д.36, к.30
Северный, Аэропорт
Динамо
70 000 000
  • Общая площадь:110 м²
  • Жилая площадь:62 м²
  • Площадь кухни:11 м²
  • Этаж:3
8
3-к.апартаменты, 82 м², 2/12 эт.
Москва, проспект Ленинградский, д.36, к.30
Северный, Аэропорт
Динамо Петровский парк
50 000 000
  • Общая площадь:82 м²
  • Жилая площадь:68 м²
  • Площадь кухни:14 м²
  • Этаж:2
11
Эксклюзив!
Москва, проспект Ленинградский, д.36, к.30
Аэропорт, Аэропорт
Динамо Петровский парк
70 000 000
  • Общая площадь:109 м²
  • Жилая площадь:65 м²
  • Площадь кухни:8 м²
  • Этаж:12
26
2-к.апартаменты, 105 м², 8/12 эт.
Москва, проспект Ленинградский, д.36, к.37
Аэропорт, Аэропорт
Динамо
650 000 / месяц
  • Общая площадь:105 м²
  • Жилая площадь:36 м²
  • Площадь кухни:34 м²
  • Этаж:8
19
3-к.апартаменты, 112 м², 11/12 эт.
Москва, проспект Ленинградский, д.36, к.30
Северный, Аэропорт
Динамо Петровский парк
69 000 000
  • Общая площадь:112 м²
  • Жилая площадь:70 м²
  • Площадь кухни:30 м²
  • Этаж:11
9
2-к.апартаменты, 51.5 м², 5/12 эт.
Москва, проспект Ленинградский, д.36, к.36
Северный, Аэропорт
Динамо Петровский парк
34 000 000
  • Общая площадь:51.5 м²
  • Жилая площадь:14 м²
  • Площадь кухни:21 м²
  • Этаж:5
19
2-к.апартаменты, 51 м², 2/12 эт.
Москва, проспект Ленинградский, д.36, к.30
Северный, Аэропорт
Динамо
43 000 000
  • Общая площадь:51 м²
  • Жилая площадь:34 м²
  • Площадь кухни:5 м²
  • Этаж:2
9
1-к.апартаменты, 50.2 м², 6/12 эт.
Москва, проспект Ленинградский, д.36, к.30
Северный, Аэропорт
Динамо Петровский парк
34 000 000
  • Общая площадь:50.2 м²
  • Жилая площадь:14 м²
  • Площадь кухни:21 м²
  • Этаж:6

Вас также может заинтересовать:

3-к.квартира, 79 м², 3/20 эт.
Москва, улица Паршина, д.10
Северо-западный
Октябрьское поле
33 000 000
  • Общая площадь:79 м²
  • Жилая площадь:50 м²
  • Площадь кухни:20 м²
  • Этаж:3
Свободная планировка, 63.7 м², 23/34 эт.
Москва, улица Обручева, д.23, к.1
Юго-западный, Обручевский
Калужская
40 900 000
  • Общая площадь:63.7 м²
  • Жилая площадь:1 м²
  • Этаж:23
Свободная планировка, 46.8 м², 35/1 эт.
Москва, проспект Севастопольский, д.22А
Котловка, Котловка
30 000 000
  • Общая площадь:46.8 м²
  • Жилая площадь:1 м²
  • Этаж:35

Мы используем файлы cookie, чтобы обеспечить вам наилучший доступ к нашему веб-сайту

Скопировано