Москва, ул Малая Пироговская, д 16
Пн-пт с 09:00 до 21:00, Сб-вс с 11:00 до 18:00

Продажа 4-к.квартира, 120 м², 8/11 эт. ID: J59192

Москва, Раменки, Раменки, улица Винницкая, д.8, к.3

Раменки Солнцевская 10 мин.
Комнаты 4
Площадь 120 м²
Жилая 85 м²
Кухня 15 м²
Этаж 8 из 11
Материал Монолитный
Никифорова Лиана

Никифорова Лиана
Специалист по недвижимости

+7(903)150-8087

liana@chaseestate.ru
QR
Ссылка на объект

Описание

Лот 59192

Предлагается на продажу уникальная 4-х комнатная квартира в ЖК бизнес класса "Настоящее "

Квартира расположены в малоэтажном корпусе, на этаже всего 2 квартиры. Высота потолков 3.4м

Квартира находится в стадии ремонта. Выполнены следующие работы: Кладка стен , штукатурка , разводка электрики , разводка сантехники, отопление согласно дизайн-проекта. Фото дизайн проекта по запросу.

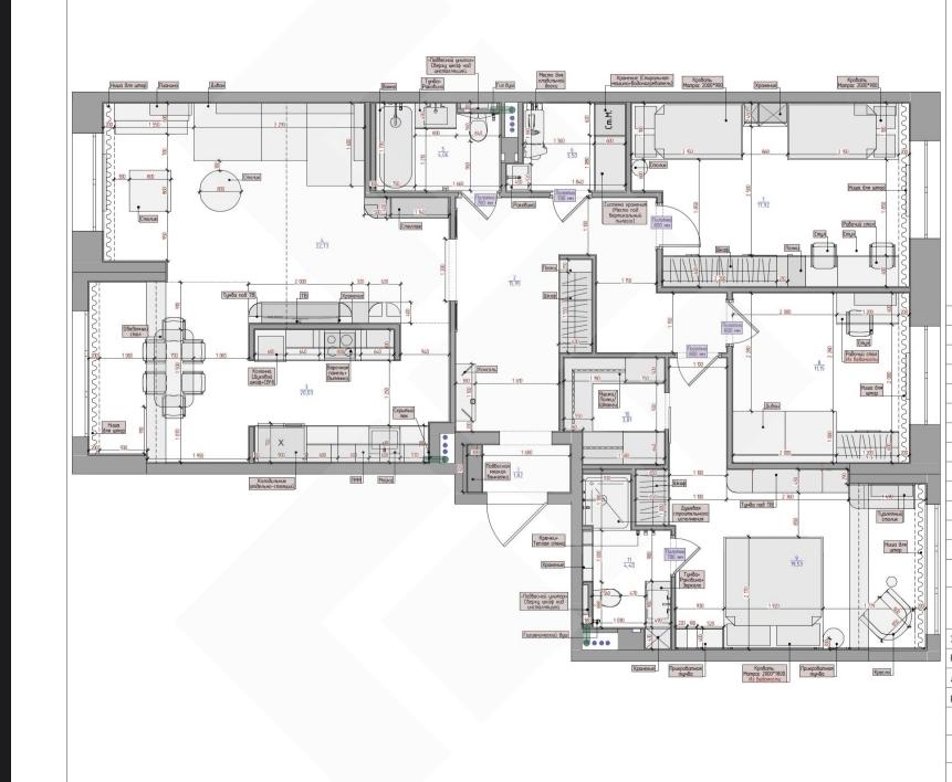
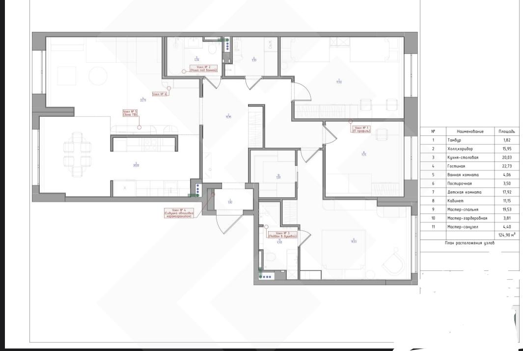
Функциональная планировка:
- кухня-столовая 20 кв.м
- гостиная 22 кв.м
- мастер-спальня 19.5 кв.м с гардеробной 3.8 кв.м и с/у с душевой 4.4 кв.м
- детская 19 кв.м
- кабинет/спальня 11 кв.м
- гостевой с/у с ванной 4.5кв.м
- постирочная 3.5 кв.м
- холл 16 кв.м

Условия сделки:
- полна цена в ДКП
- приобреталась по договору долевого участия у застройщика
- без обременений
- без маткапитала
- никто не прописан
- быстрый выход на сделку

Дизайн-проект в подарок!

Двор без машин, оборудован детскими и спортивными площадками, зонами для прогулок и променадов, на территории развита внутренняя инфраструктура: кафе, салоны красоты, магазины, аптека и прочее.
Подземный паркинг.

Район располагает всей необходимой инфраструктурой: в шаговой доступности находятся школы, детские сады, клиники и магазины. До метро "Раменки" всего 10 минут пешком, поэтому вы всегда будете мобильно перемещаться по городу.
Подробнее

Характеристики

  • Тип недвижимости Квартиры
  • Населенный пункт Москва
  • Адм.округ Раменки
  • Район Раменки
  • Адрес улица Винницкая, д.8, к.3
  • Станция метро Раменки ( 10 мин.)
  • Количество комнат 4
  • Общая площадь 120 м²
  • Жилая площадь 85 м²
  • Площадь кухни 15 м²
  • Этаж 8
  • Этажей в доме 11
  • Ремонт частичный ремонт
  • Высота потолков в метрах 3.4 м.
  • Тип дома Монолитный
  • Количество раздельных санузлов 3
  • Количество грузовых лифтов 3
  • Количество пассажирских лифтов 2
  • Пентхаус нет
  • Есть терраса нет
  • Апартаменты нет
  • Жилой комплекс ЖК «Настоящее»
  • Паркинг Подземная
  • Тип санузла Раздельный
  • Тип продажи Свободная продажа
  • Счетчики оплачиваются отдельно нет

Застройщик:

АО «СЗНИИМОССТРОЙ»

Задать вопрос


Другие объекты застройщика АО «СЗНИИМОССТРОЙ»:

10
1-к.квартира, 43 м², 4/21 эт.
Москва, улица Винницкая, д.8, к.2
Раменки, Раменки
Раменки Матвеевское Мичуринский проспект
27 000 000
  • Общая площадь:43 м²
  • Жилая площадь:28 м²
  • Этаж:4
  • Тип санузла:Совмещенный
11
3-к.квартира, 100 м², 10/15 эт.
Москва, улица Винницкая, д.8, к.3
Раменки, Раменки
Раменки Мичуринский проспект
48 000 000
  • Общая площадь:100 м²
  • Жилая площадь:58 м²
  • Площадь кухни:17 м²
  • Этаж:10
16
4-к.квартира, 101 м², 10/24 эт.
Москва, улица Винницкая, д.8, к.3
Западный, Раменки
Раменки Мичуринский проспект Матвеевское
82 900 000
  • Общая площадь:101 м²
  • Жилая площадь:46 м²
  • Площадь кухни:12 м²
  • Этаж:10
10
3-к.квартира, 64.8 м², 13/13 эт.
Москва, улица Винницкая, д.8, к.2
Западный, Раменки
Раменки Мичуринский проспект Матвеевское
51 500 000
  • Общая площадь:64.8 м²
  • Жилая площадь:45 м²
  • Площадь кухни:14 м²
  • Этаж:13

Вас также может заинтересовать:

3-к.апартаменты, 105 м², 11/13 эт.
Москва, переулок 3-й Люсиновский, д.1, к.1
Центральный
Серпуховская
69 000 000
  • Общая площадь:105 м²
  • Жилая площадь:60 м²
  • Площадь кухни:20 м²
  • Этаж:11
3-к.квартира, 148 м², 3/14 эт.
Москва, улица Усачёва, д.11
Хамовники, Хамовники
Фрунзенская
78 490 000
  • Общая площадь:148 м²
  • Жилая площадь:80 м²
  • Площадь кухни:29 м²
  • Этаж:3
1-к.квартира, 130 м², 1/1 эт.
Москва, переулок Большой Тишинский, д.38, к.1
Пресненский, Пресненский
100 000 000
  • Общая площадь:130 м²
  • Жилая площадь:1 м²
  • Площадь кухни:1 м²
  • Этаж:1

Мы используем файлы cookie, чтобы обеспечить вам наилучший доступ к нашему веб-сайту

Скопировано