Москва, ул Малая Пироговская, д 16
Пн-пт с 09:00 до 21:00, Сб-вс с 11:00 до 18:00

Продажа 2-к.квартира, 73 м², 7/24 эт. ID: J34308

Москва, Северо-западный, набережная Шелепихинская, д.34, к.2

Шелепиха Солнцевская 10 мин.
Комнаты 2
Площадь 73 м²
Жилая 35 м²
Кухня 25 м²
Этаж 7 из 24
Сдача 2018 г.
Гутникова Ольга

Гутникова Ольга
Специалист по недвижимости

+7(925)227-5546

gutnikova@chaseestate.ru
QR
Ссылка на объект

Описание

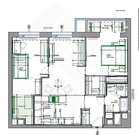
Лот 53932 в Жилом комплексе “Сердце столицы” предлагается в продажу евро 3-х комнатная квартира общей площадью 73м2.
Функциональная планировка: кухня- гостиная- мастер спальня- детская комната-гардеробная- общий СУ.
В квартире установлены сенсорные выключатели для многоуровнего света, в кухонной зоне стены выполнены из широкоформатного керамогранита. Вся техника на кухне немецкая. В прихожей, гостиной и кухне полы выполнены из керамогранита, полы с подогревом. Вся мебель в квартире выполнена под заказ, установлены двери увеличенной площади скрытого монтажа. В мастер спальне имеется полноценная оснащенная гардеробная комната. В гостиной установлен кондиционер.
Жилой комплекс “Сердце столицы” это комплекс бизнес класса, расположенный в СЗАО в районе Хорошево- Мневники. Концепцией комплекса предусмотрен двор без машин общей площадью 7 Га. По всему периметру комплекса ведется видеонаблюдение, круглосуточная охрана и организован пропускной режима через 5 КПП. К каждому КПП подведена видеодомофонная связь. На ресепшн каждого ЖД работает консьерж, на каждой линии находится профессиональная управляющая компания, инженерный и обслуживающий персонал
На территории комплекса расположен детский сад и школа, собственный парк, фонтан, амфитеатр, зона выгула и дрессировки собак, work out зона, баскетбольно- волейбольная площадка. При каждом жилом доме оборудована детская игровая площадка с песочницей, качелями.
Развитая инфраструктура комплекса предлагает жителям винный ресторан Only , ресторан морепродуктов, многочисленные кафе, пиццерии с бесплатной доставкой по всему ЖК. В ЖК функционирует детский сад Yoko, стоматология, салоны красоты, фитнес центр X-Fit, химчистки, салон цветов, винный магазин, магазины одежды, творческие студии и танцевальный клуб, медицинская клиника. Открыты супермаркеты.
Подробнее

Характеристики

  • Тип недвижимости Квартиры
  • Населенный пункт Москва
  • Адм.округ Северо-западный
  • Адрес набережная Шелепихинская, д.34, к.2
  • Станция метро Шелепиха ( 10 мин.)
  • Количество комнат 2
  • Год постройки дома 2018 г.
  • Общая площадь 73 м²
  • Жилая площадь 35 м²
  • Площадь кухни 25 м²
  • Этаж 7
  • Этажей в доме 24
  • Ремонт дизайнерский
  • Вид из окон во двор
  • Количество совмещенных санузлов 1
  • Количество грузовых лифтов 2
  • Количество пассажирских лифтов 2
  • Пентхаус нет
  • Есть терраса нет
  • Апартаменты нет
  • Количество лоджий 1
  • Жилой комплекс ЖК «Сердце столицы»
  • Тип продажи Свободная продажа
  • Счетчики оплачиваются отдельно нет

Задать вопрос


Другие объекты застройщика ООО «СЗ «Сердце Столицы»:

5
Видовая квартира на воду!!!
Москва, набережная Шелепихинская, д.34, к.1
Северо-западный
Шелепиха
54 500 000
  • Общая площадь:72.4 м²
  • Жилая площадь:38 м²
  • Площадь кухни:14 м²
  • Этаж:30
5
2-к.квартира, 49 м², 18/24 эт.
Москва, набережная Шелепихинская, д.34, к.6
Северо-западный, Хорошёво-Мневники
Шелепиха
33 500 000
  • Общая площадь:49 м²
  • Жилая площадь:14 м²
  • Площадь кухни:22 м²
  • Этаж:18
7
1-к.апартаменты, 38 м², 15/41 эт.
Москва, набережная Шелепихинская, д.34, к.9
Северо-западный
Шелепиха
22 900 000
  • Общая площадь:38 м²
  • Жилая площадь:16 м²
  • Площадь кухни:12 м²
  • Этаж:15
6
3-к.апартаменты, 86 м², 25/37 эт.
Москва, набережная Шелепихинская, д.34, к.5
Северо-западный
Шелепиха
44 900 000
  • Общая площадь:86 м²
  • Жилая площадь:48 м²
  • Площадь кухни:12 м²
  • Этаж:25
25
4-к.квартира, 111 м², 9/36 эт.
Москва, набережная Шелепихинская, д.34, к.2
Северо-западный
Шелепиха
320 000 / месяц
  • Общая площадь:111 м²
  • Жилая площадь:71 м²
  • Площадь кухни:15 м²
  • Этаж:9
1-к.квартира, 1 м², 1/24 эт.
Москва, набережная Шелепихинская, д.34, к.2
Северо-западный, Хорошёво-Мневники
Шелепиха
Цена по запросу
  • Общая площадь:1 м²
  • Жилая площадь:1 м²
  • Этаж:1
Отличная видовая квартира
Москва, набережная Шелепихинская, д.34, к.2
Северо-западный, Хорошёво-Мневники
Шелепиха
49 900 000
  • Общая площадь:1 м²
  • Жилая площадь:1 м²
  • Этаж:1
7
Прекрасная светлая квартира!
Москва, набережная Шелепихинская, д.34, к.4
Северо-западный
Шелепиха
41 000 000
  • Общая площадь:89 м²
  • Жилая площадь:50 м²
  • Площадь кухни:10 м²
  • Этаж:10
18
3-к.квартира, 96 м², 30/37 эт.
Москва, набережная Шелепихинская, д.34, к.2
Северо-западный, Хорошёво-Мневники
Шелепиха
240 000 / месяц
  • Общая площадь:96 м²
  • Жилая площадь:56 м²
  • Площадь кухни:17 м²
  • Этаж:30
5
ПЕРЕУСТУПКА!! ЛЬГОТНАЯ ИПОТЕКА!!!ПОЛНАЯ ЦЕНА В ДОГОВОРЕ!!!
Москва, набережная Шелепихинская, д.34, к.9
Северо-западный
Шелепиха
21 900 000
  • Общая площадь:42 м²
  • Жилая площадь:20 м²
  • Площадь кухни:13 м²
  • Этаж:26
22
3-к.квартира, 96 м², 30/37 эт.
Москва, набережная Шелепихинская, д.34, к.2
Северо-западный
Шелепиха
59 800 000
  • Общая площадь:96 м²
  • Жилая площадь:56 м²
  • Площадь кухни:17 м²
  • Этаж:30
11
6+к.квартира, 191 м², 15/24 эт.
Москва, набережная Шелепихинская, д.34, к.4
Северо-западный
Шелепиха
95 000 000
  • Общая площадь:191 м²
  • Жилая площадь:120 м²
  • Площадь кухни:47 м²
  • Этаж:15

Вас также может заинтересовать:

1-к.квартира, 56.5 м², 7/20 эт.
Москва, улица Дружинниковская, д.15А
Центральный, Пресненский
Краснопресненская Баррикадная
55 300 000
  • Общая площадь:56.5 м²
  • Жилая площадь:20 м²
  • Площадь кухни:26 м²
  • Этаж:7
3-к.квартира, 74 м², 2/24 эт.
Москва, шоссе Хорошёвское, д.25А, к.3
Северный, Северный
Хорошевская Беговая
50 000 000
  • Общая площадь:74 м²
  • Жилая площадь:30 м²
  • Площадь кухни:25 м²
  • Этаж:2
Свободная планировка, 63.7 м², 23/34 эт.
Москва, улица Обручева, д.23, к.1
Юго-западный, Обручевский
Калужская
40 900 000
  • Общая площадь:63.7 м²
  • Жилая площадь:1 м²
  • Этаж:23

Мы используем файлы cookie, чтобы обеспечить вам наилучший доступ к нашему веб-сайту

Скопировано