Москва, ул Малая Пироговская, д 16
Пн-пт с 09:00 до 21:00, Сб-вс с 11:00 до 18:00

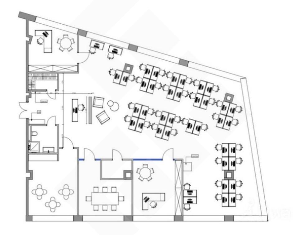
Продажа Офисное помещение 288 м² ID: J62233

Москва, Северо-восточный, Ростокино, улица Вильгельма Пика, д.11

Ботанический сад Калужско-Рижская 1 мин.
Площадь 288 м²
Этаж 12 из 19
Кот Мария

Кот Мария
Специалист по недвижимости

+7(967)198-0892

+7(495)797-7074

kot@chaseestate.ru
QR
Ссылка на объект

Описание

Продаётся современный офис в новом бизнес-центре Botanica.
Помещение полностью готово к въезду: выполнена качественная отделка, установлены фальшполы, предусмотрена смешанная планировка, отдельный санузел и душевая кабина.
Преимущества объекта:
• офис с готовой отделкой;
• смешанная планировка (open space и кабинеты);
• современное инженерное оснащение;
• отдельный санузел и душевая кабина;
• новый бизнес-центр класса А.
Расположение:
Здание находится в 1 минуте от метро и МЦК Ботанический сад. Вокруг — развитая инфраструктура: торговый центр, пятизвёздочная гостиница, апартаменты, кафе и сервисы. Поблизости расположены зелёные зоны — Главный ботанический сад РАН и ВДНХ.

Удобная транспортная доступность: 1 минута до метро, 40 минут на автомобиле до аэропорта Шереметьево, 10 км до Красной площади.

Характеристики

Задать вопрос


Вас также может заинтересовать:

6
Торговое помещение 89 м²
Москва, улица Большая Серпуховская, д.19/37, к.2
Центральный, Замоскворечье
Серпуховская
110 000 000
  • Вид объекта:Торговое помещение
  • Этаж:1
  • Этажность дома:3
6
Офисное помещение 301 м²
Москва, улица Крымский Вал, д.3, к.2
Центральный
Октябрьская
150 000 000
  • Вид объекта:Офисное помещение
  • Этаж:3
  • Этажность дома:5
19
Помещение свободного назначения 135 м²
Москва, улица Черногрязская 2-я, д.6, к.4
Центральный, Пресненский
Улица 1905 года
145 000 000
  • Вид объекта:Помещение свободного назначения
  • Этаж:1
  • Этажность дома:21

Мы используем файлы cookie, чтобы обеспечить вам наилучший доступ к нашему веб-сайту

Скопировано