Москва, ул Малая Пироговская, д 16
Пн-пт с 09:00 до 21:00, Сб-вс с 11:00 до 18:00

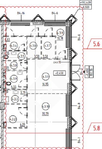
Продажа Помещение свободного назначения 97 м² ID: J62213

Москва, Западный, Раменки, г Москва, 1-й Сетуньский пр-д

Парк Победы Арбатско-Покровская 5 мин.
Площадь 97 м²
Этаж 1 из 1
Хакунова Юлия

Хакунова Юлия
Специалист по недвижимости

+7(905)754-4458

+7(495)797-7074

hakunova@chaseestate.ru
QR
Ссылка на объект

Описание

ID 62213 Продается ПСН площадью 97 м2 расположенное на первом этаже жилого комплекса премиум класса Hide (4 корпус).
Помещение угловое, с отдельным входом, зальной планировки, с витринными окнами. В бетоне. Высота потолков 5 м. Все коммуникации в наличии, электричество по запросу. ТОРГ
Жилой комплекс Hide представляет собой три 41-этажных высотки с квартирами премиум-класса, собственным парком и клубной инфраструктурой. ЗАО г. Москвы, район Раменки.. Отличная транспортная доступность: 5 минут до Кутузовского проспекта, 10 минут до Садового кольца и Москва-Сити. Ближайшие станции метро «Кутузовская» и «Студенческая».

Характеристики

  • Тип недвижимости Коммерческая
  • Населенный пункт Москва
  • Адм.округ Западный
  • Район Раменки
  • Адрес проезд 1-й Сетуньский
  • Станция метро Парк Победы ( 5 мин.)
  • Общая площадь 97 м²
  • Вид объекта Помещение свободного назначения
  • Этаж 1
  • Этажность дома 1
  • Электричество нет
  • Газ нет
  • Интернет нет
  • Водоснабжение нет
  • Коммунальные услуги включены в стоимость нет
  • Памятник нет
  • Планировка Открытая

Задать вопрос


Вас также может заинтересовать:

6
Торговое помещение 89 м²
Москва, улица Большая Серпуховская, д.19/37, к.2
Центральный, Замоскворечье
Серпуховская
110 000 000
  • Вид объекта:Торговое помещение
  • Этаж:1
  • Этажность дома:3
6
Офисное помещение 301 м²
Москва, улица Крымский Вал, д.3, к.2
Центральный
Октябрьская
150 000 000
  • Вид объекта:Офисное помещение
  • Этаж:3
  • Этажность дома:5
5
Помещение свободного назначения 519 м²
Москва, улица Братеевская, д.16, к.1
Южный, Братеево
Алма-Атинская
155 000 000
  • Вид объекта:Помещение свободного назначения
  • Этаж:1
  • Этажность дома:17

Мы используем файлы cookie, чтобы обеспечить вам наилучший доступ к нашему веб-сайту

Скопировано