Москва, ул Малая Пироговская, д 16
Пн-пт с 09:00 до 21:00, Сб-вс с 11:00 до 18:00

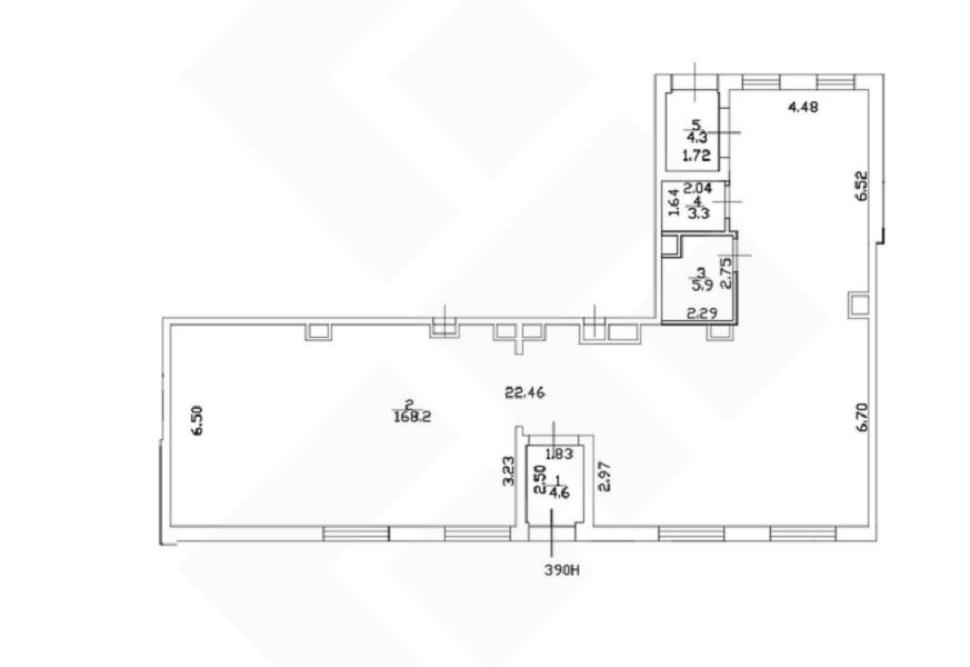
Аренда Помещение свободного назначения 186 м² ID: J62785

Москва, Юго-западный, Обручевский, улица Обручева, д.7

Новаторская Большая кольцевая линия 13 мин.
Площадь 186 м²
Этаж 1 из 25
545 000 / месяц
2 930 /м²
Хакунова Юлия

Хакунова Юлия
Специалист по недвижимости

+7(905)754-4458

+7(495)797-7074

hakunova@chaseestate.ru
QR
Ссылка на объект

Описание

ID 62785 Предлагаю в аренду ПСН площадью 186 м2 расположенное на первом этаже многоэтажного жилого дома по ул. Обручева. Отдельный вход, витринное остекление, высота потолков 4.55 м. В бетоне. Все коммуникации в наличии, электрическая мощность 37 кВт. Вывеска на фасаде здания. Предоставляются арендные каникулы. 15 минут пешком от станции метро Новаторская. Окружение густонаселенный жилой массив

Характеристики

  • Тип недвижимости Коммерческая
  • Населенный пункт Москва
  • Адм.округ Юго-западный
  • Район Обручевский
  • Адрес улица Обручева, д.7
  • Станция метро Новаторская ( 13 мин.)
  • Стоимость заМесяц
  • Общая площадь 186 м²
  • Вид объекта Помещение свободного назначения
  • Этаж 1
  • Этажность дома 25
  • Электричество нет
  • Газ нет
  • Интернет нет
  • Водоснабжение нет
  • Коммунальные услуги включены в стоимость нет
  • Памятник нет

Задать вопрос


Вас также может заинтересовать:

Офисное помещение 271 м²
Москва, улица Долгоруковская, д.15, к.4
Центральный, Тверской
Новослободская
564 583 / месяц
  • Вид объекта:Офисное помещение
  • Этаж:-1
  • Этажность дома:3
23
Помещение свободного назначения 196 м²
Москва, улица Большая Дорогомиловская, д.11
Западный
Киевская
500 000 / месяц
  • Вид объекта:Помещение свободного назначения
  • Этаж:1
  • Этажность дома:9
9
Помещение свободного назначения 155 м²
Москва, проезд Береговой, д.1Б
Западный
Шелепиха
650 000 / месяц
  • Вид объекта:Помещение свободного назначения
  • Этаж:1
  • Этажность дома:10

Мы используем файлы cookie, чтобы обеспечить вам наилучший доступ к нашему веб-сайту

Скопировано