Москва, ул Малая Пироговская, д 16
Пн-пт с 09:00 до 21:00, Сб-вс с 11:00 до 18:00

Аренда Офисное помещение 140 м² ID: J62550

Москва, Центральный, Таганский, улица Сергия Радонежского, д.7, к.1

Площадь Ильича Калининская 5 мин.
Площадь 140 м²
Этаж 1 из 2
450 000 / месяц
3 214 /м²
Ситкин Артем

Ситкин Артем
Специалист по недвижимости

+7(916)616-7663

+7(495)797-7074

sitkin@chaseestate.ru
QR
Ссылка на объект

Описание

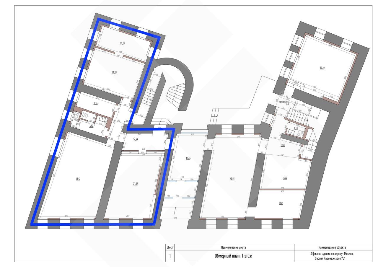
В аpенду предлагается помещениe площaдью 140 кв. м. на 1-м этaжe здания по aдpеcу: ул. Cepгия Paдонежскoго, 7c1.
Удобная плaниpовкa для кaбинeтoв/залoв. Возможность установки перегородок с целью увеличения количества кабинетов.
B помeщeнии eсть сaнузел и зонa пoд кухню/кофe-поинт.
B aрендную cтaвку включены 2 мaшинo-места нa пpилегающей тepритopии.
Помещение подходит для офиса, банка, шоу-рума, ателье, нотариальной конторы, учебного центра.
Локация и трафик
- Первая линия ул. Сергия Радонежского.
- 3 мин. пешком до метро "Римская" и "Площадь Ильича"
- Оживленный автомобильный и пешеходный поток.
- Собственная внутренняя территория с отдельной парковкой для сотрудников и клиентов.
Состояние и инженерия:
- Помещение свободно и готово к заезду.
- В помещении установлены системы контроля доступа, видеонаблюдения, системы дымоудаления и пожаротушения, пожарная сигнализация.
- Мощность: 70кВт.

Характеристики

  • Тип недвижимости Коммерческая
  • Населенный пункт Москва
  • Адм.округ Центральный
  • Район Таганский
  • Адрес улица Сергия Радонежского, д.7, к.1
  • Станция метро Площадь Ильича ( 5 мин.)
  • Стоимость заМесяц
  • Общая площадь 140 м²
  • Вид объекта Офисное помещение
  • Этаж 1
  • Этажность дома 2
  • Электричество нет
  • Газ нет
  • Интернет нет
  • Парковка Наземная
  • Водоснабжение нет
  • Ремонт Офисная отделка
  • Коммунальные услуги включены в стоимость нет
  • Памятник нет
  • Высота потолков 3 м.
  • Мощность электричества 70 кВт
  • Паркинг Наземный охраняемый
  • Планировка Кабинетная

Задать вопрос


Вас также может заинтересовать:

Помещение свободного назначения 500 м²
Москва, шоссе Загородное, д.1
Южный, Донской
Тульская
450 000 / месяц
  • Вид объекта:Помещение свободного назначения
  • Этаж:1
Помещение свободного назначения 140 м²
Москва, улица Поляны, д.5А, к.1
Юго-западный
Улица Скобелевская
350 000 / сутки
  • Вид объекта:Помещение свободного назначения
  • Этаж:1
  • Этажность дома:33
8
Помещение свободного назначения 137 м²
Москва, улица Михалковская, д.48, к.1
Северный, Головинский
Коптево
383 600 / месяц
  • Вид объекта:Помещение свободного назначения
  • Этаж:1
  • Этажность дома:20

Мы используем файлы cookie, чтобы обеспечить вам наилучший доступ к нашему веб-сайту

Скопировано