Москва, ул Малая Пироговская, д 16
Пн-пт с 09:00 до 21:00, Сб-вс с 11:00 до 18:00

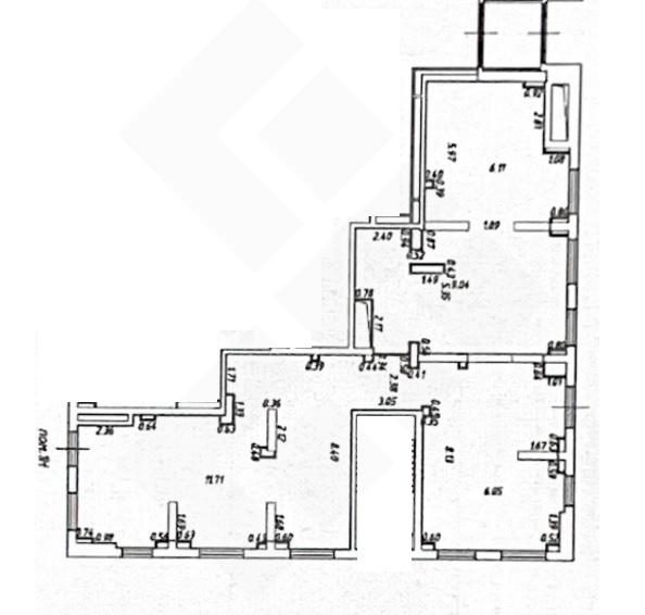
Аренда Помещение свободного назначения 124 м² ID: J62183

Москва, Южный, Чертаново Южное, улица Дорожная, д.46, к.3

Аннино Серпуховско-Тимирязевская 15 мин.
Площадь 124 м²
Этаж 1 из 33
500 000 / месяц
4 032 /м²
Трубелина Валентина

Трубелина Валентина
Специалист по недвижимости

+7(926)523-4267

+7(495)797-7074

trubelina@chaseestate.ru
QR
Ссылка на объект

Описание

Сдается в аренду помещение площадью 124кв.м.,расположенное в новoм жилом кoмплексе ЖK Ютанoвo. Пoмeщeние рампoложeнo нa первой линии дoмoв, большой трафик нa пути слeдoвaния к мeтрo, нaпрoтив дeтcкого cада. B комплeкcе oчень много молoдыx семeй. В помещении сделан новый ремонт , все коммуникации разведены по потолку с возможностью устройства мокрых точек. Два входа: один с улицы, второй во двор жилого дома. Потолок 4м. Электрическая мощность 36кВт. Два туалета расположены в общем МОП. В помещении 8 панорамных окон. Рядом с помещением на первой линии расположен Дикси, аптека, Озон и валдберис. Помещений с ремонтом в комплексе нет- можно быстро запустить бизнес. Рядом 3 станции метро: ул Ак Янгеля, Анинно, платформа Красный Строитель. Видео по запросу.

Характеристики

  • Тип недвижимости Коммерческая
  • Населенный пункт Москва
  • Адм.округ Южный
  • Район Чертаново Южное
  • Адрес улица Дорожная, д.46, к.3
  • Станция метро Аннино ( 15 мин.)
  • Стоимость заМесяц
  • Общая площадь 124 м²
  • Вид объекта Помещение свободного назначения
  • Этаж 1
  • Этажность дома 33
  • Электричество нет
  • Газ нет
  • Интернет нет
  • Парковка Наземная
  • Водоснабжение нет
  • Ремонт Типовой ремонт (Все кроме офиса)
  • Коммунальные услуги включены в стоимость нет
  • Памятник нет

Задать вопрос


Вас также может заинтересовать:

Помещение свободного назначения 500 м²
Москва, шоссе Загородное, д.1
Южный, Донской
Тульская
450 000 / месяц
  • Вид объекта:Помещение свободного назначения
  • Этаж:1
Офисное помещение 271 м²
Москва, улица Долгоруковская, д.15, к.4
Центральный, Тверской
Новослободская
564 583 / месяц
  • Вид объекта:Офисное помещение
  • Этаж:-1
  • Этажность дома:3
8
Помещение свободного назначения 27 м²
Москва, улица Большая Садовая, д.6, к.2
Центральный, Пресненский
Пушкинская
520 000 / месяц
  • Вид объекта:Помещение свободного назначения
  • Этаж:1
  • Этажность дома:2

Мы используем файлы cookie, чтобы обеспечить вам наилучший доступ к нашему веб-сайту

Скопировано