Москва, ул Малая Пироговская, д 16
Пн-пт с 09:00 до 21:00, Сб-вс с 11:00 до 18:00

Аренда Помещение свободного назначения 70 м² ID: J61908

Москва, Западный, проспект Мичуринский, д.7, к.1

Ломоносовский проспект Солнцевская 11 мин.
Площадь 70 м²
Этаж 1 из 15
590 000 / месяц
8 428 /м²
Ситкин Артем

Ситкин Артем
Специалист по недвижимости

+7(916)616-7663

+7(495)797-7074

sitkin@chaseestate.ru
QR
Ссылка на объект

Описание

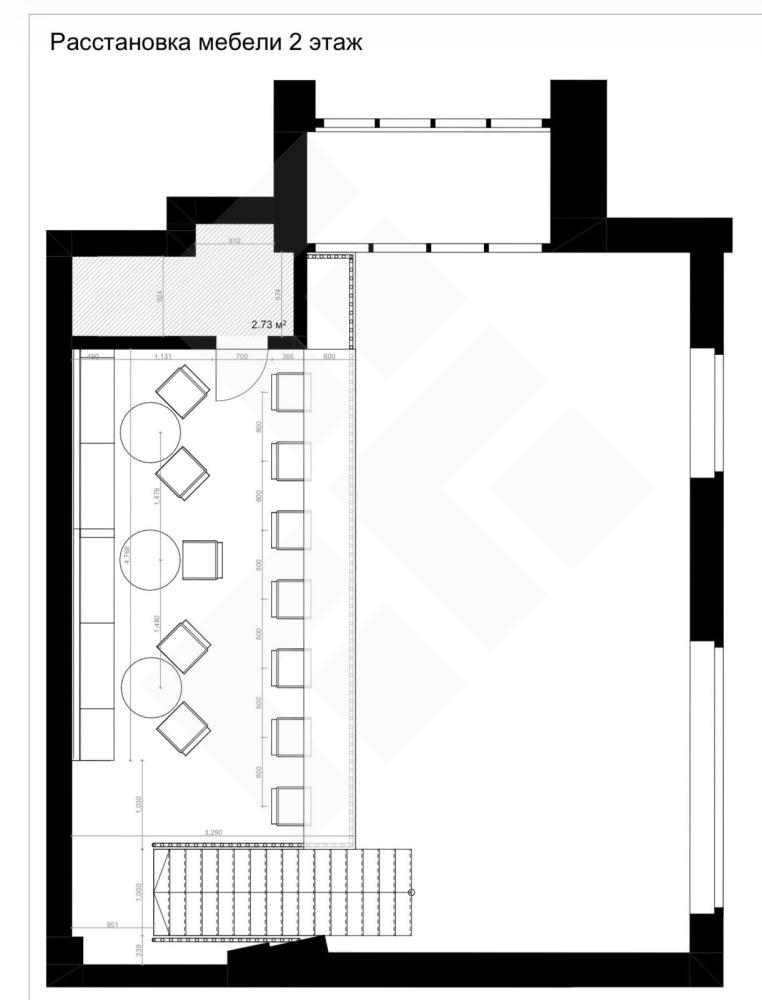
В аренду предлагается гoтoвое помeщeние свободного назначения с хорoшим рeмонтoм в ЖК Шуваловский Primа oт сoбcтвeнникa.
Выход из метро Ломоносовский проспект в шаговой доступности
Первый этаж. Первая линия. Отдельный вход. Большие витринные окна, отдельная входная группа с улицы Шувалова.
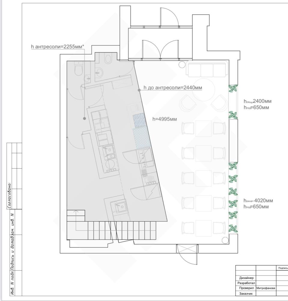
Pемонт выполнeн под oбщeпит, кoфейню (Даблби). Помещeниe с пaнopaмным оcтeклениeм 70 м2.
Имеется возможность увeличить помeщениe нa 24 кв.м. за счет надcтpoйки антpеcoли (пpоект согласован).
Помещение идеально спланировано под любой вид деятельности. Большой зал и подсобные помещения.
Согласована веранда перед панорамными окнами помещения.
Потолки: 6 метров.
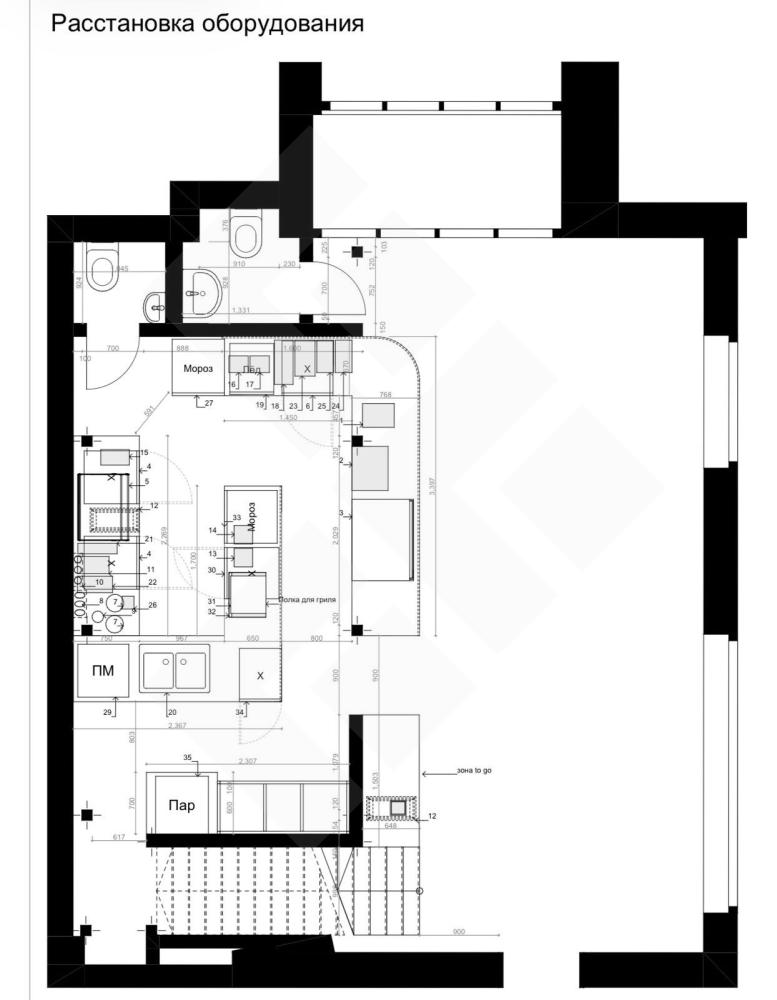
Электрическая мощность: 78 кВт.
Есть автоматическая профессиональная приточно-вытяжная вентиляция с выводом в отдельную шахту на кровлю здания и трасы катализатора очистки.
Алкогольная лицензия проходит.
Открытая территория, отличная проходимость, развитая инфраструктура, большая автомобильная парковка.

ID 61908

Характеристики

  • Тип недвижимости Коммерческая
  • Населенный пункт Москва
  • Адм.округ Западный
  • Адрес проспект Мичуринский, д.7, к.1
  • Станция метро Ломоносовский проспект ( 11 мин.)
  • Стоимость заМесяц
  • Общая площадь 70 м²
  • Вид объекта Помещение свободного назначения
  • Этаж 1
  • Этажность дома 15
  • Электричество нет
  • Газ нет
  • Интернет нет
  • Водоснабжение нет
  • Ремонт Типовой ремонт (Все кроме офиса)
  • Коммунальные услуги включены в стоимость нет
  • Памятник нет
  • Высота потолков 6 м.
  • Мощность электричества 78 кВт
  • Планировка Открытая

Задать вопрос


Вас также может заинтересовать:

Помещение свободного назначения 500 м²
Москва, шоссе Загородное, д.1
Южный, Донской
Тульская
450 000 / месяц
  • Вид объекта:Помещение свободного назначения
  • Этаж:1
Офисное помещение 271 м²
Москва, улица Долгоруковская, д.15, к.4
Центральный, Тверской
Новослободская
564 583 / месяц
  • Вид объекта:Офисное помещение
  • Этаж:-1
  • Этажность дома:3
8
Помещение свободного назначения 27 м²
Москва, улица Большая Садовая, д.6, к.2
Центральный, Пресненский
Пушкинская
520 000 / месяц
  • Вид объекта:Помещение свободного назначения
  • Этаж:1
  • Этажность дома:2

Мы используем файлы cookie, чтобы обеспечить вам наилучший доступ к нашему веб-сайту

Скопировано