Москва, ул Малая Пироговская, д 16
Пн-пт с 09:00 до 21:00, Сб-вс с 11:00 до 18:00

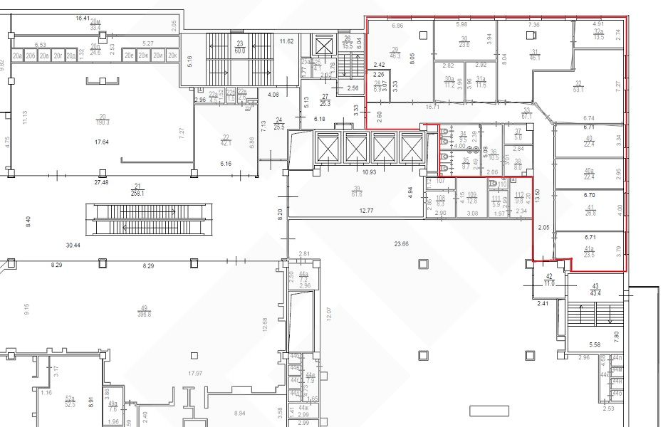
Аренда Офисное помещение 420 м² ID: J15478

Москва, Северо-западный, улица Щукинская, д.42

Площадь 420 м²
Этаж 3 из 6
1 250 000 / месяц
2 976 /м²
Трубелина Валентина

Трубелина Валентина
Специалист по недвижимости

+7(926)523-4267

+7(495)797-7074

trubelina@chaseestate.ru
QR
Ссылка на объект

Описание

Предлагается помещение в аренду в ТРК Щука, 1 минута пешком от метро Щукинская, удобная транспортная развязка. Помещение на 3 этаже, 420 м2. Планировка кабинетная. Санузел в блоке. Помещение оборудовано современными инженерными коммуникациями (система приточно-вытяжной вентиляции, системы водо-, тепло-, энергоснабжения, пожаротушения). Действует круглосуточная охрана территории, видео наблюдение, контроль доступа. Существует дополнительная возможность аренды машиномест подземного охраняемого паркинга. Развитая инфраструктура- фитнес клуб "DDX FITNESS", супермаркет Перекрёсток, рестораны, фудкорт, торговые галереи, аптека, кинотеатр. Эксплуатационные расходы включены в арендный платеж. Коммунальные услуги оплачиваются отдельно. Освобождается 23.10.25г.

Характеристики

  • Тип недвижимости Коммерческая
  • Населенный пункт Москва
  • Адм.округ Северо-западный
  • Адрес улица Щукинская, д.42
  • Стоимость заМесяц
  • Общая площадь 420 м²
  • Вид объекта Офисное помещение
  • Этаж 3
  • Этажность дома 6
  • Электричество нет
  • Газ нет
  • Интернет нет
  • Парковка Наземная
  • Водоснабжение нет
  • Ремонт Офисная отделка
  • Коммунальные услуги включены в стоимость нет
  • Памятник нет
  • Паркинг Неохраняемый паркинг
  • Планировка Кабинетная

Задать вопрос


Вас также может заинтересовать:

14
Офисное помещение 265 м²
Москва, улица Малая Дмитровка, д.23/15, к.1
Центральный
Пушкинская
1 060 000 / месяц
  • Вид объекта:Офисное помещение
  • Этаж:5
  • Этажность дома:6
6
Торговое помещение 313 м²
Москва, улица Дмитрия Ульянова, д.24/1
Юго-западный
Академическая
1 200 000 / месяц
  • Вид объекта:Торговое помещение
  • Этаж:1
  • Этажность дома:9
4
Помещение свободного назначения 192 м²
Москва, улица Барклая, д.6А, к.1
Западный, Филёвский парк
Парк Победы Парк Победы
962 000 / месяц
  • Вид объекта:Помещение свободного назначения
  • Этаж:1
  • Этажность дома:23

Мы используем файлы cookie, чтобы обеспечить вам наилучший доступ к нашему веб-сайту

Скопировано