Москва, ул Малая Пироговская, д 16
Пн-пт с 09:00 до 21:00, Сб-вс с 11:00 до 18:00

Продажа Здание 505 м² ID: J12825

Москва, Центральный, улица Новокузнецкая, д.24, к.2

Павелецкая Замоскворецкая 7 мин.
Площадь 505 м²
Этаж 1 из 2
Хакунова Юлия

Хакунова Юлия
Специалист по недвижимости

+7(905)754-4458

+7(495)797-7074

hakunova@chaseestate.ru
QR
Ссылка на объект

Описание

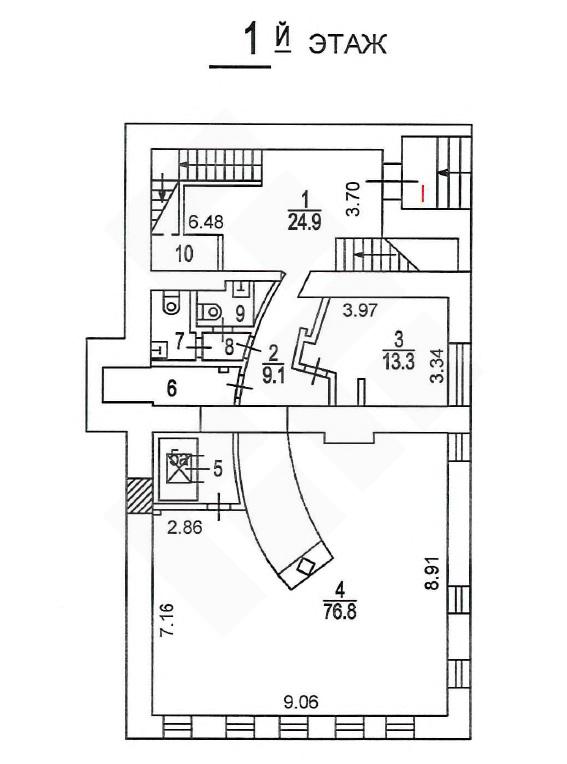
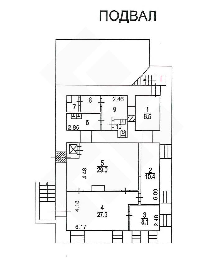
ID 59442 Продается ОСЗ общей площадью 505 м2, расположенное на первой линии домов по ул. Новокузнецкая. Три отдельных входа. Четыре уровня - цоколь, два этажа и мансарда. Помещение полностью оборудовано под ресторан. Все оборудование и мебель остаются. Кухня расположена в подвале. Все коммуникации в наличии, электричество 100 кВт. Согласована летняя веранда. ЗУ в аренде, арендатор - ресторан, МАП 750 тыс., договор аренды на 5 лет, индексация 7 %. Есть возможность круглосуточной работы. Отличная локация. 10 минут пешком от станций метро Новокузнецкая и Павелецкая.
подвал - 103,7 кв.м, 1 этаж - 140,9 кв.м, 2 этаж - 147,4 кв.м, антресоль - 112,7 кв.м
Высота потолков - 3 метра
Объект является памятником архитектуры.

Характеристики

  • Тип недвижимости Коммерческая
  • Населенный пункт Москва
  • Адм.округ Центральный
  • Адрес улица Новокузнецкая, д.24, к.2
  • Станция метро Павелецкая ( 7 мин.)
  • Общая площадь 505 м²
  • Вид объекта Здание
  • Этаж 1
  • Этажность дома 2
  • Электричество нет
  • Газ нет
  • Интернет нет
  • Водоснабжение нет
  • Коммунальные услуги включены в стоимость нет
  • Памятник нет

Задать вопрос


Вас также может заинтересовать:

Офисное помещение 188 м²
Москва, набережная Пресненская, д.6, к.2
Центральный
Выставочная
188 000 000
  • Вид объекта:Офисное помещение
  • Этаж:16
  • Этажность дома:60
6
Офисное помещение 301 м²
Москва, улица Крымский Вал, д.3, к.2
Центральный
Октябрьская
150 000 000
  • Вид объекта:Офисное помещение
  • Этаж:3
  • Этажность дома:5
5
Помещение свободного назначения 545 м²
Москва, набережная Шелепихинская, д.34, к.2
Северо-западный
Шелепиха
183 000 000
  • Вид объекта:Помещение свободного назначения
  • Этаж:1
  • Этажность дома:17

Мы используем файлы cookie, чтобы обеспечить вам наилучший доступ к нашему веб-сайту

Скопировано