Москва, ул Малая Пироговская, д 16
Пн-пт с 09:00 до 21:00, Сб-вс с 11:00 до 18:00

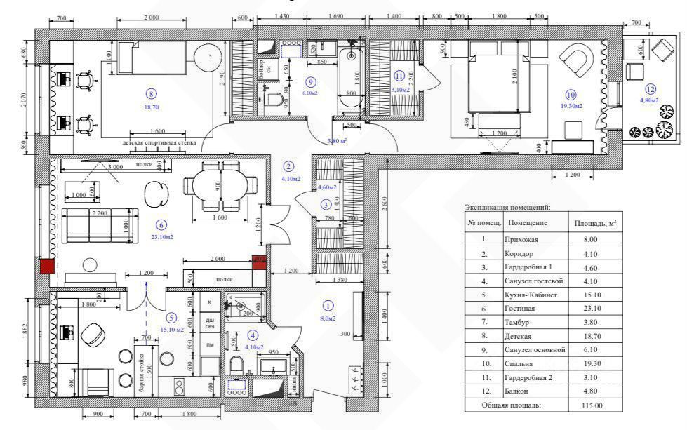
Аренда 3-к.квартира, 115 м², 10/13 эт. ID: J56084

Москва, Замоскворечье, Замоскворечье, улица Мытная, д.7, к.1

Серпуховская Серпуховско-Тимирязевская 10 мин.
Комнаты 3
Площадь 115 м²
Жилая 69 м²
Кухня 15 м²
Этаж 10 из 13
Ходоровская Ксения

Ходоровская Ксения
Специалист по недвижимости

+7(903)677-2773

hodorovskaya@chaseestate.ru
QR
Ссылка на объект

Описание

Лот 65728

Сдается дизайнерская квартира с хорошим ремонтом в ЖК премиум-класса "Английский квартал".

Квартира с двумя спальнями, гостиной и кухней-кабинетом, двумя гардеробными и двумя с/у оформлена профессиональным дизайнером, в современном стиле. Мастер-спальня с зимним садом.

В квартире итальянская мебель, встроенная системы вентиляции, кондиционирования, увлажнения и очистка воды.
Полностью оборудованная кухня с посудомоечной машиной, холодильником, св печь и духовкой. Оформленные спальня и детская комната. Оборудованные гардеробные комнаты. Два с/у совмещённые: бойлер, ванна, душевая, подогреваемый пол: керамогранит.

Сейф для документов, сейф для завода наручных часов, сейф для оружия.

Охраняемая огороженная территория, свободна от машин, две детских площадки, ухоженная территория.
Жк расположен в уютном и престижном районе Замоскворечье. Район с развитой инфраструктурой, в непосредственной близости от Парка Горького, Третьяковской галереи и Музеона. На соседних улицах находятся самые престижные вузы Москвы: Плехановский, Высшая школа экономики и другие, детские сады и школы, Морозовская детская больница.
Подробнее

Характеристики

  • Тип недвижимости Квартиры
  • Населенный пункт Москва
  • Адм.округ Замоскворечье
  • Район Замоскворечье
  • Адрес улица Мытная, д.7, к.1
  • Станция метро Серпуховская ( 10 мин.)
  • Стоимость заМесяц
  • Количество комнат 3
  • Общая площадь 115 м²
  • Жилая площадь 69 м²
  • Площадь кухни 15 м²
  • Этаж 10
  • Этажей в доме 13
  • Ремонт дизайнерский
  • Вид из окон во двор и на улицу
  • Количество совмещенных санузлов 2
  • Есть телевизор нет
  • Есть телефон нет
  • Есть кондиционер нет
  • Есть холодильник нет
  • Есть посудомоечная машина нет
  • Можно с детьми нет
  • Можно с животными нет
  • Есть мебель нет
  • Есть мебель на кухне нет
  • Количество грузовых лифтов 1
  • Количество пассажирских лифтов 1
  • Пентхаус нет
  • Есть терраса нет
  • Апартаменты нет
  • Количество лоджий 1
  • Жилой комплекс ЖК «Английский квартал»
  • Коммуналка включена да
  • Счетчики оплачиваются отдельно нет

Задать вопрос


Другие объекты застройщика ЖСК «Английский квартал»:

6
2-к.квартира, 82 м², 4/14 эт.
Москва, улица Мытная, д.7, к.1
Замоскворечье, Замоскворечье
Серпуховская
51 000 000
  • Общая площадь:82 м²
  • Жилая площадь:56 м²
  • Площадь кухни:14 м²
  • Этаж:4
7
3-к.квартира, 114 м², 7/14 эт.
Москва, улица Мытная, д.7, к.2
Замоскворечье, Замоскворечье
Серпуховская
75 000 000
  • Общая площадь:114 м²
  • Жилая площадь:54 м²
  • Площадь кухни:15 м²
  • Этаж:7
23
5-к.квартира, 145 м², 3/14 эт.
Москва, улица Мытная, д.7, к.1
Замоскворечье, Замоскворечье
Серпуховская
130 000 000
  • Общая площадь:145 м²
  • Жилая площадь:91 м²
  • Площадь кухни:17 м²
  • Этаж:3
12
2-к.квартира, 78 м², 11/14 эт.
Москва, улица Мытная, д.7, к.1
Замоскворечье, Замоскворечье
Серпуховская Октябрьская
65 000 000
  • Общая площадь:78 м²
  • Жилая площадь:50 м²
  • Площадь кухни:15 м²
  • Этаж:11
9
2-к.квартира, 82 м², 4/14 эт.
Москва, улица Мытная, д.7, к.1
Замоскворечье, Замоскворечье
Серпуховская
61 000 000
  • Общая площадь:82 м²
  • Жилая площадь:56 м²
  • Площадь кухни:14 м²
  • Этаж:4
25
3-к.квартира, 120 м², 2/17 эт.
Москва, улица Мытная, д.7, к.2
Южный
Серпуховская Добрынинская Октябрьская
89 000 000
  • Общая площадь:120 м²
  • Жилая площадь:80 м²
  • Площадь кухни:35 м²
  • Этаж:2

Вас также может заинтересовать:

Свободная планировка, 107 м², 2/1 эт.
Москва, улица Орджоникидзе, д.1
Донской, Донской
250 000 / сутки
  • Общая площадь:107 м²
  • Жилая площадь:1 м²
  • Этаж:2
1-к.квартира, 70 м², 20/44 эт.
Москва, улица Ходынская, д.2
Пресненский, Пресненский
Улица 1905 года
200 000 / месяц
  • Общая площадь:70 м²
  • Жилая площадь:47 м²
  • Площадь кухни:10 м²
  • Этаж:20
3-к.квартира, 98 м², 46/53 эт.
Москва, улица Мосфильмовская, д.8
Раменки, Раменки
Ломоносовский проспект
250 000 / месяц
  • Общая площадь:98 м²
  • Жилая площадь:73 м²
  • Площадь кухни:15 м²
  • Этаж:46

Мы используем файлы cookie, чтобы обеспечить вам наилучший доступ к нашему веб-сайту

Скопировано