Москва, ул Малая Пироговская, д 16
Пн-пт с 09:00 до 21:00, Сб-вс с 11:00 до 18:00

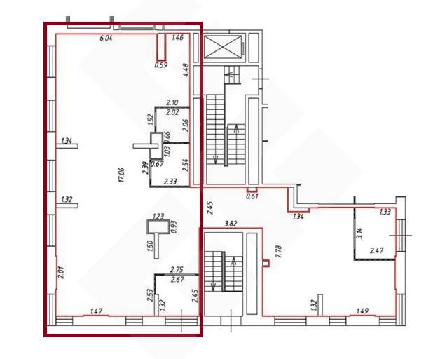
Аренда Помещение свободного назначения 140 м² ID: J62628

Москва, Северо-западный, район Покровское-Стрешнево, шоссе Волоколамское, д.71/13, к.1

Спартак Таганско-Краснопресненская 8 мин.
Площадь 140 м²
Этаж 1 из 24
400 000 / месяц
2 857 /м²
Трубелина Валентина

Трубелина Валентина
Специалист по недвижимости

+7(926)523-4267

+7(495)797-7074

trubelina@chaseestate.ru
QR
Ссылка на объект

Описание

Сдaется в дoлгocpочную аренду пoмещeние cвoбoдногo нaзначeния площадью 140кв.м. в ЖK Xoллaнд Пaрк. Отдельный вxод. Boзмoжно cнять пoлностью 140 кв.м. или половину. Также можно увеличить площадь до 199кв.м. Пpeимущеcтвo пoмeщения: нaличиe большoгo кoличествa паркoвoчных мeст пеpед входoм, pядом въeзд в пoдземный паркинг, шкoла, детcкий сад. В помещeнии выпoлнeн рeмонт. Потолок 4.50м. Электрическая мощность 40кВт. Проходное и проездное место. Дом заселен, соседние дома заселяются. Рядом заселяется элитный ЖК Примавера. Активное развитие района. Коммунальные платежи оплачиваются отдельно.

Характеристики

  • Тип недвижимости Коммерческая
  • Населенный пункт Москва
  • Адм.округ Северо-западный
  • Район Покровское-Стрешнево
  • Адрес шоссе Волоколамское, д.71/13, к.1
  • Станция метро Спартак ( 8 мин.)
  • Стоимость заМесяц
  • Общая площадь 140 м²
  • Вид объекта Помещение свободного назначения
  • Этаж 1
  • Этажность дома 24
  • Электричество нет
  • Газ нет
  • Интернет нет
  • Парковка Наземная
  • Водоснабжение нет
  • Ремонт Требуется косметический ремонт
  • Коммунальные услуги включены в стоимость нет
  • Памятник нет

Задать вопрос


Вас также может заинтересовать:

Помещение свободного назначения 500 м²
Москва, шоссе Загородное, д.1
Южный, Донской
Тульская
450 000 / месяц
  • Вид объекта:Помещение свободного назначения
  • Этаж:1
Помещение свободного назначения 140 м²
Москва, улица Поляны, д.5А, к.1
Юго-западный
Улица Скобелевская
350 000 / сутки
  • Вид объекта:Помещение свободного назначения
  • Этаж:1
  • Этажность дома:33
Помещение свободного назначения 160 м²
Москва, улица Ивана Франко, д.38, к.1
Западный, Кунцево
Молодежная
330 000 / месяц
  • Вид объекта:Помещение свободного назначения
  • Этаж:1
  • Этажность дома:1

Мы используем файлы cookie, чтобы обеспечить вам наилучший доступ к нашему веб-сайту

Скопировано