Москва, ул Малая Пироговская, д 16
Пн-пт с 09:00 до 21:00, Сб-вс с 11:00 до 18:00

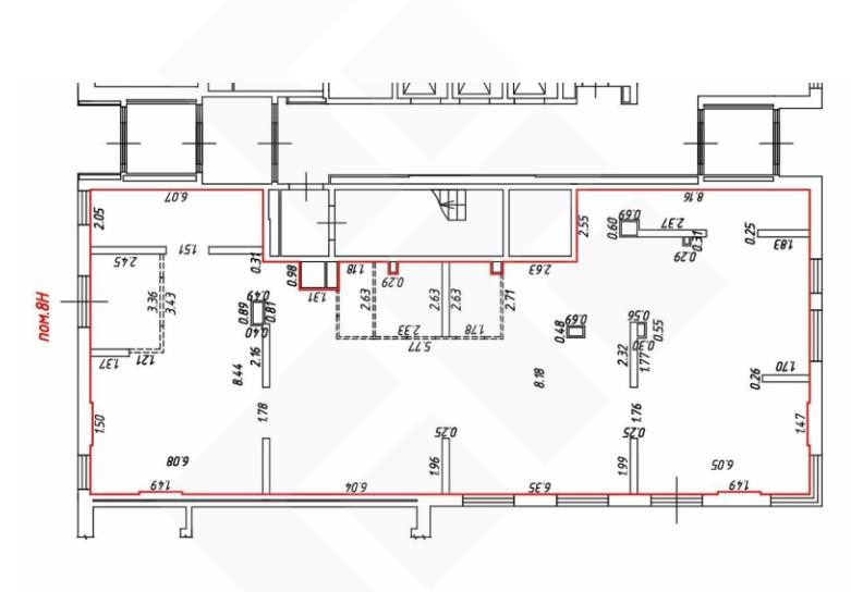
Аренда Помещение свободного назначения 231 м² ID: J62026

Москва, Северо-восточный, Бутырский, улица Добролюбова, д.8, к.2

Бутырская Люблинско-Дмитровская 8 мин.
Площадь 231 м²
Этаж 1 из 25
1 039 500 / месяц
4 500 /м²
Трубелина Валентина

Трубелина Валентина
Специалист по недвижимости

+7(926)523-4267

+7(495)797-7074

trubelina@chaseestate.ru
QR
Ссылка на объект

Описание

Сдается помещение площадью 231кв.м. в пешей доступности от м.Бутырская. Густонаселенный район. Рядом строится детский сад. Помещение имеет два входа-с улицы и во двор. Напротив парковка. Потолок 4.50м. Электрическая мощность 46кВт,возможно увеличение. Коммунальные платежи оплачиваются отдельно.

Характеристики

  • Тип недвижимости Коммерческая
  • Населенный пункт Москва
  • Адм.округ Северо-восточный
  • Район Бутырский
  • Адрес улица Добролюбова, д.8, к.2
  • Станция метро Бутырская ( 8 мин.)
  • Стоимость заМесяц
  • Общая площадь 231 м²
  • Вид объекта Помещение свободного назначения
  • Этаж 1
  • Этажность дома 25
  • Электричество нет
  • Газ нет
  • Интернет нет
  • Парковка Наземная
  • Водоснабжение нет
  • Ремонт Требуется капитальный ремонт
  • Коммунальные услуги включены в стоимость нет
  • Памятник нет

Задать вопрос


Вас также может заинтересовать:

18
Помещение свободного назначения 400 м²
Москва, улица Велозаводская, д.6
Южный, Даниловский
Автозаводская
900 000 / месяц
  • Вид объекта:Помещение свободного назначения
  • Этаж:1
  • Этажность дома:6
6
Торговое помещение 313 м²
Москва, улица Дмитрия Ульянова, д.24/1
Юго-западный
Академическая
1 200 000 / месяц
  • Вид объекта:Торговое помещение
  • Этаж:1
  • Этажность дома:9
14
Офисное помещение 265 м²
Москва, улица Малая Дмитровка, д.23/15, к.1
Центральный
Пушкинская
1 060 000 / месяц
  • Вид объекта:Офисное помещение
  • Этаж:5
  • Этажность дома:6

Мы используем файлы cookie, чтобы обеспечить вам наилучший доступ к нашему веб-сайту

Скопировано