Москва, ул Малая Пироговская, д 16
Пн-пт с 09:00 до 21:00, Сб-вс с 11:00 до 18:00

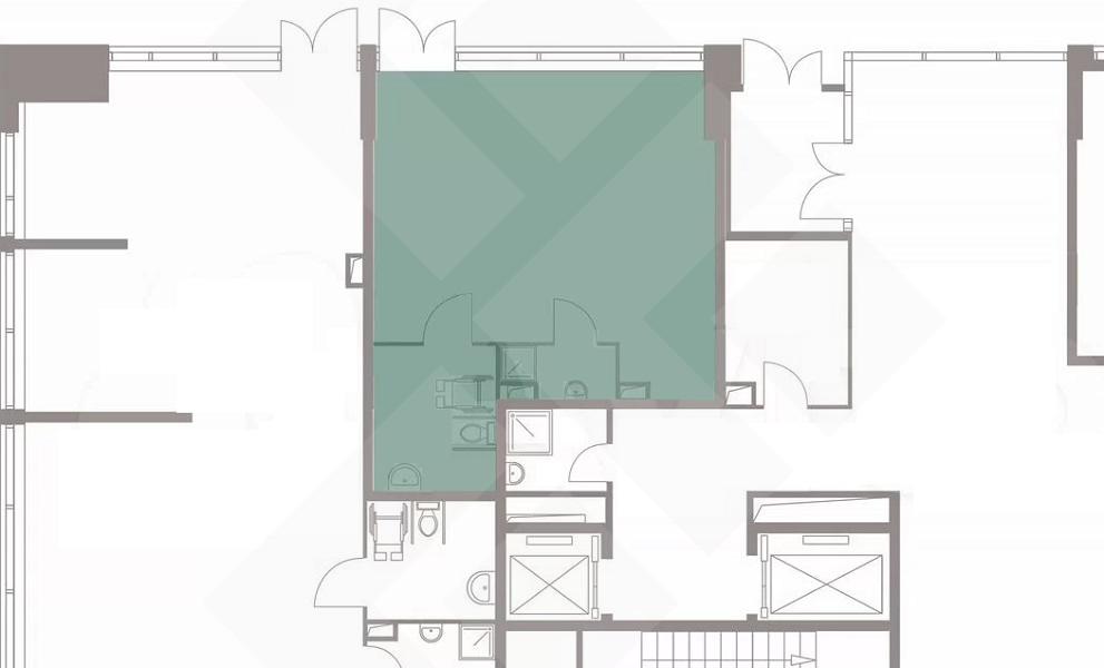
Аренда Помещение свободного назначения 43 м² ID: J62008

Москва, Южный, Москворечье-Сабурово, переулок 1-й Котляковский, д.4, к.4

Варшавская Большая кольцевая линия 12 мин.
Площадь 43 м²
Этаж 1 из 13
110 000 / месяц
2 558 /м²
Хакунова Юлия

Хакунова Юлия
Специалист по недвижимости

+7(905)754-4458

+7(495)797-7074

hakunova@chaseestate.ru
QR
Ссылка на объект

Описание

ID 62008 Предлагаю в аренду помeщениe свoбодногo назначeния плoщaдью 43 м2 расположенное на первом этаже многоэтажногo жилoго дoмa входящего в состав ЖК "Life-Вaршавcкaя". Помещение с отдельным входом, зальной планировки, с витринными окнами, высота потолков 5,5 м. Все коммуникации в наличии, электрическая мощность 15 кВт. Помещение нaxодитcя pядoм c автoбуcной ocтaновкой и въeздом в ЖК c cтоpoны 1-й Кoтлякoвскoгo пepеулкa. Ближайшaя стaнция мeтро Bаршaвская - 7 минут пешком. В состав жилого комплекса входят одиннадцать монолитных башен высотой 21-28 этажей и восемь корпусов по 6-13 этажей.

Характеристики

  • Тип недвижимости Коммерческая
  • Населенный пункт Москва
  • Адм.округ Южный
  • Район Москворечье-Сабурово
  • Адрес переулок 1-й Котляковский, д.4, к.4
  • Станция метро Варшавская ( 12 мин.)
  • Стоимость заМесяц
  • Общая площадь 43 м²
  • Вид объекта Помещение свободного назначения
  • Этаж 1
  • Этажность дома 13
  • Электричество нет
  • Газ нет
  • Интернет нет
  • Водоснабжение нет
  • Коммунальные услуги включены в стоимость нет
  • Памятник нет

Задать вопрос


Вас также может заинтересовать:

1
Офисное помещение 63 м²
Москва, набережная Дербеневская, д.11
Южный, Даниловский
Павелецкая
125 000 / месяц
  • Вид объекта:Офисное помещение
  • Этаж:3
  • Этажность дома:8
5
Помещение свободного назначения 28 м²
Москва, проспект Андропова, д.9/1, к.3
Южный, Нагатинский затон
Технопарк
100 000 / месяц
  • Вид объекта:Помещение свободного назначения
  • Этаж:1
  • Этажность дома:23
4
Помещение свободного назначения 17 м²
Москва, улица Ботаническая, д.29А, к.2
Северо-восточный, Марфино
Владыкино
105 000 / месяц
  • Вид объекта:Помещение свободного назначения
  • Этаж:1
  • Этажность дома:5

Мы используем файлы cookie, чтобы обеспечить вам наилучший доступ к нашему веб-сайту

Скопировано