Москва, ул Малая Пироговская, д 16
Пн-пт с 09:00 до 21:00, Сб-вс с 11:00 до 18:00

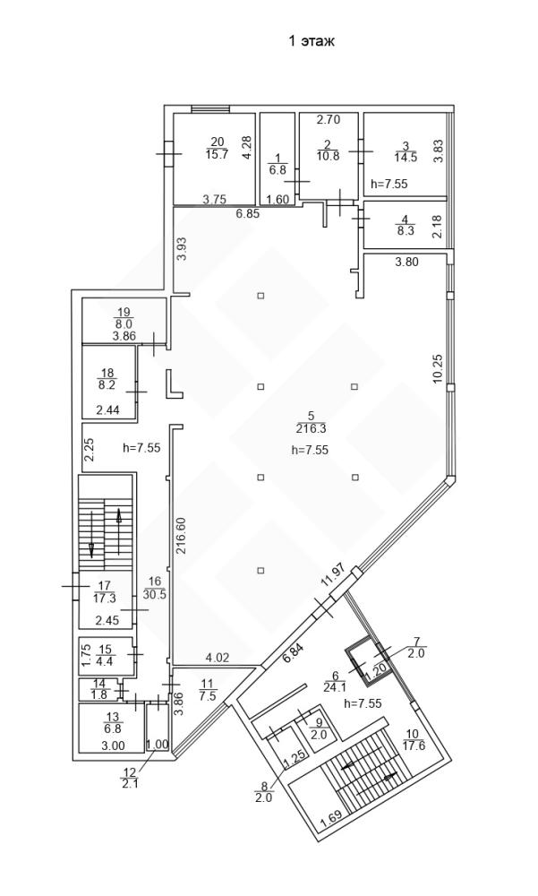
Аренда Помещение свободного назначения 794 м² ID: J62002

Москва, Северо-восточный, Марьина роща, улица Сущёвский Вал, д.18А

Марьина Роща Люблинско-Дмитровская 10 мин.
Площадь 794 м²
Этаж 1 из 2
2 400 000 / месяц
3 022 /м²
Кот Мария

Кот Мария
Специалист по недвижимости

+7(967)198-0892

+7(495)797-7074

kot@chaseestate.ru
QR
Ссылка на объект

Описание

В аренду предлагается отдельно стоящее здание, расположенное на улице Сущевский вал.
Первая линия домов. 10 минут от метро Марьина Роща.
Интенсивный автомобильный и пешеходный поток.
Плотный жилой массив, соседство с бизнес-центром Новосущевский.

Общая площадь - 794 кв.м
Высота потолков: 1 этаж - 7,55 метра, 2 этаж - 3,9 метра
В помещениях выполнена качественная отделка под ресторан.
Электрическая мощность - 150 кВт
Возможна организация летней веранды на кровле здания.

НДС включен в арендную ставку.

Характеристики

  • Тип недвижимости Коммерческая
  • Населенный пункт Москва
  • Адм.округ Северо-восточный
  • Район Марьина роща
  • Адрес улица Сущёвский Вал, д.18А
  • Станция метро Марьина Роща ( 10 мин.)
  • Стоимость заМесяц
  • Общая площадь 794 м²
  • Вид объекта Помещение свободного назначения
  • Этаж 1
  • Этажность дома 2
  • Электричество нет
  • Газ нет
  • Интернет нет
  • Водоснабжение нет
  • Коммунальные услуги включены в стоимость нет
  • Памятник нет

Задать вопрос


Вас также может заинтересовать:

Здание 1113 м²
Москва, улица Минская, д.4
Западный
Филевский парк
1 800 000 / месяц
  • Вид объекта:Здание
  • Этаж:1
  • Этажность дома:2
6
Офисное помещение 1263 м²
Москва, улица Шаболовка, д.31
Центральный
Шаболовская
2 789 125 / месяц
  • Вид объекта:Офисное помещение
  • Этаж:1
  • Этажность дома:9
3
Помещение свободного назначения 189 м²
Москва, бульвар Гоголевский, д.3
Центральный, Хамовники
Кропоткинская
2 100 000 / месяц
  • Вид объекта:Помещение свободного назначения
  • Этаж:1
  • Этажность дома:3

Мы используем файлы cookie, чтобы обеспечить вам наилучший доступ к нашему веб-сайту

Скопировано