Москва, ул Малая Пироговская, д 16
Пн-пт с 09:00 до 21:00, Сб-вс с 11:00 до 18:00

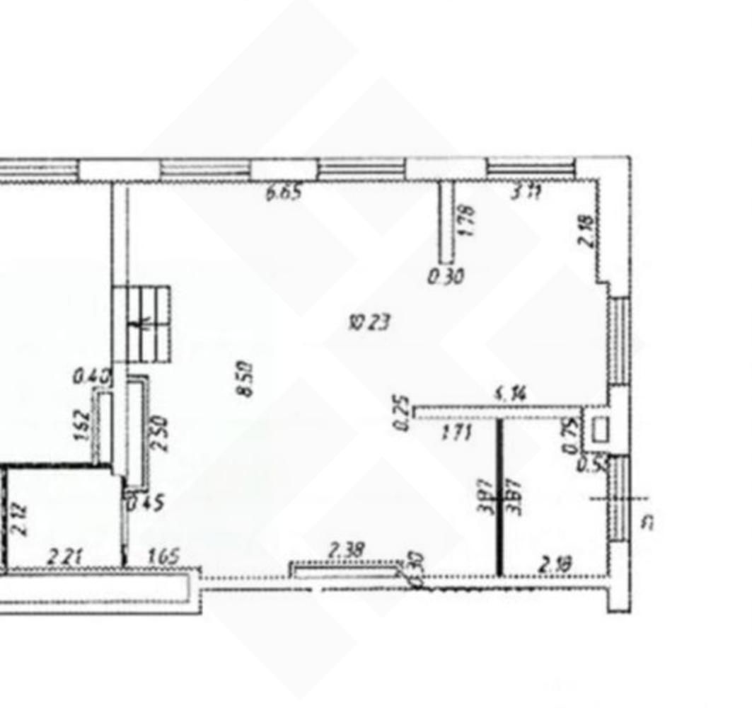
Аренда Помещение свободного назначения 91 м² ID: J61603

Москва, Северный, Дмитровский, улица Лобненская, д.13, к.2

Лианозово Люблинско-Дмитровская 18 мин.
Площадь 91 м²
Этаж 1 из 30
330 000 / месяц
3 626 /м²
Хакунова Юлия

Хакунова Юлия
Специалист по недвижимости

+7(905)754-4458

+7(495)797-7074

hakunova@chaseestate.ru
QR
Ссылка на объект

Описание

ID 61603 Предлагаю в аренду ПСН площадью 91 м2, расположенное на первом этаже многоэтажного жилого дома, входящего в состав ЖК Дмитровский парк. Помещение угловое, с отдельным входом, зальной планировки, с витринными окнами по фасаду. Все коммуникации в наличии, электрическая мощность 20 кВт. ЖК сдан, заселен. Станция метро Селигерская 10 мин на транспорте.

Характеристики

  • Тип недвижимости Коммерческая
  • Населенный пункт Москва
  • Адм.округ Северный
  • Район Дмитровский
  • Адрес улица Лобненская, д.13, к.2
  • Станция метро Лианозово ( 18 мин.)
  • Стоимость заМесяц
  • Общая площадь 91 м²
  • Вид объекта Помещение свободного назначения
  • Этаж 1
  • Этажность дома 30
  • Электричество нет
  • Газ нет
  • Интернет нет
  • Водоснабжение нет
  • Коммунальные услуги включены в стоимость нет
  • Памятник нет

Задать вопрос


Вас также может заинтересовать:

Помещение свободного назначения 140 м²
Москва, улица Поляны, д.5А, к.1
Юго-западный
Улица Скобелевская
350 000 / сутки
  • Вид объекта:Помещение свободного назначения
  • Этаж:1
  • Этажность дома:33
Помещение свободного назначения 160 м²
Москва, улица Ивана Франко, д.38, к.1
Западный, Кунцево
Молодежная
330 000 / месяц
  • Вид объекта:Помещение свободного назначения
  • Этаж:1
  • Этажность дома:1
5
Помещение свободного назначения 52 м²
Москва, улица Летниковская, д.10, к.2
Центральный, Замоскворечье
Павелецкая
250 000 / месяц
  • Вид объекта:Помещение свободного назначения
  • Этаж:1
  • Этажность дома:9

Мы используем файлы cookie, чтобы обеспечить вам наилучший доступ к нашему веб-сайту

Скопировано