Москва, ул Малая Пироговская, д 16
Пн-пт с 09:00 до 21:00, Сб-вс с 11:00 до 18:00

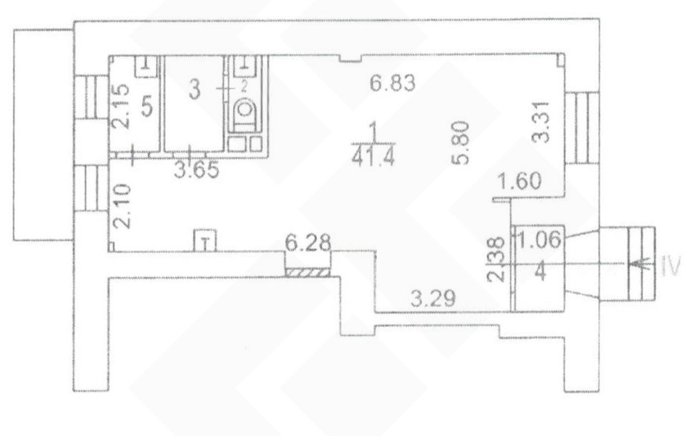
Аренда Помещение свободного назначения 51 м² ID: J58268

Москва, Центральный, улица Бакунинская, д.8

Бауманская Арбатско-Покровская 2 мин.
Площадь 51 м²
Этаж 1 из 7
270 000 / месяц
5 294 /м²
Ситкин Артем

Ситкин Артем
Специалист по недвижимости

+7(916)616-7663

+7(495)797-7074

sitkin@chaseestate.ru
QR
Ссылка на объект

Описание

В аренду предлагается помещение свободного назначения, расположенное на первом этаже многоквартирного жилого дома в 2-3 минутах ходьбы от станции метро "Бауманская".
Общая площадь - 50,8 кв.м.
Помещение с отделкой, состояние - за выездом арендатора, планировка - зальная.
Отдельный вход.
Витринные окна, рольставни.
Возможность размещения рекламы на фасаде здания.
Высота потолков - 3 метра.
Презентабельная входная группа (крыльцо с козырьками).
Электрическая мощность - 15 кВт.
Кондиционеры, интернет, 1 парковочное место.
УСН, коммунальные платежи оплачиваются по фактическому потреблению.
Имеется возможность устройства приточно-вытяжной вентиляции.
Помещение свободно.

Характеристики

  • Тип недвижимости Коммерческая
  • Населенный пункт Москва
  • Адм.округ Центральный
  • Адрес улица Бакунинская, д.8
  • Станция метро Бауманская ( 2 мин.)
  • Стоимость заМесяц
  • Общая площадь 51 м²
  • Вид объекта Помещение свободного назначения
  • Этаж 1
  • Этажность дома 7
  • Электричество нет
  • Газ нет
  • Интернет нет
  • Водоснабжение нет
  • Ремонт Типовой ремонт (Все кроме офиса)
  • Коммунальные услуги включены в стоимость нет
  • Памятник нет
  • Мощность электричества 15 кВт
  • Паркинг Наземный охраняемый

Задать вопрос


Вас также может заинтересовать:

Помещение свободного назначения 160 м²
Москва, улица Ивана Франко, д.38, к.1
Западный, Кунцево
Молодежная
330 000 / месяц
  • Вид объекта:Помещение свободного назначения
  • Этаж:1
  • Этажность дома:1
9
Офисное помещение 82 м²
Москва, улица Земляной Вал, д.4, к.1
Центральный
Курская
307 500 / месяц
  • Вид объекта:Офисное помещение
  • Этаж:1
  • Этажность дома:3
5
Помещение свободного назначения 67 м²
Москва, проспект Лихачёва, д.20
Южный, Даниловский
Технопарк
234 500 / месяц
  • Вид объекта:Помещение свободного назначения
  • Этаж:1
  • Этажность дома:14

Мы используем файлы cookie, чтобы обеспечить вам наилучший доступ к нашему веб-сайту

Скопировано