Москва, ул Малая Пироговская, д 16
Пн-пт с 09:00 до 21:00, Сб-вс с 11:00 до 18:00

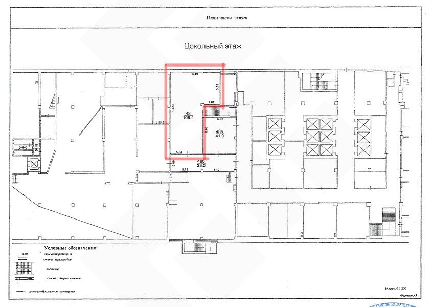
Аренда Помещение свободного назначения 108 м² ID: J57484

Москва, Юго-западный, Ломоносовский, проспект Вернадского, д.29

Проспект Вернадского Сокольническая 10 мин.
Площадь 108 м²
Этаж -1 из 24
150 000 / сутки
1 388 /м²
Трубелина Валентина

Трубелина Валентина
Специалист по недвижимости

+7(926)523-4267

+7(495)797-7074

trubelina@chaseestate.ru
QR
Ссылка на объект

Описание

Предлагается в аренду помещение 108 кв.м. в бизнес-центре Лето в шаговой доступности от метро Проспект Вернадского. Потолок 2.70-2.90м. Электрическая мощность 4.4 кВт. Мокрая точка отсутствует. Помещение находится на цокольном этаже в соседстве с Пятерочкой. Также рядом есть Wildberries, спортзал и иные бутики.

Характеристики

Задать вопрос


Вас также может заинтересовать:

Офисное помещение 64 м²
Москва, улица Русаковская, д.31
Восточный, Сокольники
Сокольники
170 000 / сутки
  • Вид объекта:Офисное помещение
  • Этаж:3
  • Этажность дома:39
10
Помещение свободного назначения 69 м²
Москва, проезд Тюменский, д.3, к.5
Юго-восточный, Восточный
Бульвар Рокоссовского
155 000 / месяц
  • Вид объекта:Помещение свободного назначения
  • Этаж:1
  • Этажность дома:9
6
Помещение свободного назначения 59 м²
Москва, переулок 1-й Котляковский, д.4, к.4
Южный, Москворечье-Сабурово
Варшавская
180 000 / месяц
  • Вид объекта:Помещение свободного назначения
  • Этаж:1
  • Этажность дома:13

Мы используем файлы cookie, чтобы обеспечить вам наилучший доступ к нашему веб-сайту

Скопировано