Москва, ул Малая Пироговская, д 16
Пн-пт с 09:00 до 21:00, Сб-вс с 11:00 до 18:00

Аренда Офисное помещение 256 м² ID: J4547

Москва, Западный, проспект Университетский, д.12

Ломоносовский проспект Солнцевская 13 мин.
Площадь 256 м²
Этаж 8 из 12
Сдача 1970 г.
1 195 000 / месяц
4 667 /м²
Кот Мария

Кот Мария
Специалист по недвижимости

+7(967)198-0892

+7(495)797-7074

kot@chaseestate.ru
QR
Ссылка на объект

Описание

Предлагается в аренду офисное помещение с отделкой в деловом центре "Воробьевский". Офис готов к въезду. Современная инженерия и техническое оснащение - реновация проведена в 2012 году. Охрана, система видеонаблюдения, система контроля доступа. Удобная транспортная доступность. Ставка включает НДС и эксплуатационные расходы.
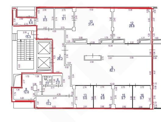
Офисный блок 256 кв.м на 8 этаже.
Качественная внутренняя отделка, планировка - смешанная.

Характеристики

  • Тип недвижимости Коммерческая
  • Населенный пункт Москва
  • Адм.округ Западный
  • Адрес проспект Университетский, д.12
  • Станция метро Ломоносовский проспект ( 13 мин.)
  • Стоимость заМесяц
  • Общая площадь 256 м²
  • Вид объекта Офисное помещение
  • Этаж 8
  • Этажность дома 12
  • Электричество нет
  • Газ нет
  • Интернет нет
  • Водоснабжение нет
  • Коммунальные услуги включены в стоимость нет
  • Памятник нет
  • Год постройки 1970 г.

Задать вопрос


Вас также может заинтересовать:

12
Офисное помещение 269 м²
Москва, переулок Малый Ивановский, д.7-9, к.1
Центральный, Басманный
Китай-город
1 221 300 / месяц
  • Вид объекта:Офисное помещение
  • Этаж:1
  • Этажность дома:3
18
Помещение свободного назначения 400 м²
Москва, улица Велозаводская, д.6
Южный, Даниловский
Автозаводская
900 000 / месяц
  • Вид объекта:Помещение свободного назначения
  • Этаж:1
  • Этажность дома:6
11
Помещение свободного назначения 270 м²
Москва, переулок Старопименовский, д.11, к.3
Центральный, Тверской
Маяковская
1 126 250 / сутки
  • Вид объекта:Помещение свободного назначения
  • Этаж:1
  • Этажность дома:2

Мы используем файлы cookie, чтобы обеспечить вам наилучший доступ к нашему веб-сайту

Скопировано